. À proximité immédiate du parc Monceau. A l'image du très couru 8 arrondissement de Paris, dévoile une sublime façade haussmannienne en pierre de taille rehaussée d'une toiture à la Mansard en zinc et ardoise, au pied du Parc Monceau, l'un des plus beaux espaces verts de la Capitale Situé dans un bel immeuble en pierre de taille, un appartement de 175,20m² loi Carrez situé au sixième et dernier étage avec ascenseur bénéficiant d'une belle hauteur sous plafond de 2,98 m. Il comporte un salon, une salle à manger, quatre chambres dont une suite parentale avec vue sur les arbres du parc Monceau et sa salle de bains ainsi qu'une cuisine aménagée. En parfait état général, ce bien présente tous les atouts d'un immeuble ancien avec moulures, parquet et cheminée. Cet emplacement bénéficie un environnement résidentiel de qualité, à proximité immédiate du parc Monceau. Ce secteur prisé est desservi par une excellente offre de transports. Il bénéficie également de la présence d'infrastructures renommées: établissements scolaires de qualité (Fénelon Sainte-Marie, Carnot ). Une cave au sous-sol complète ce bien. Ce secteur prisé est desservi par une excellente offre de transports. Il bénéficie également de la présence d'infrastructures renommées: établissements scolaires de qualité (Fénelon Sainte-Marie, Carnot ). Une cave au sous-sol complète ce bien.
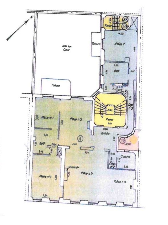
1x Entrée18.6 m² 1x Salon48.7 m² 1x Cuisine semi-équipée12.5 m² 1x Chambre de maître21.2 m² 1x Chambre10.7 m² 1x Chambre17.8 m² 1x Chambre12.9 m² 1x Dégagement3.8 m² 1x Dégagement5.1 m² 1x Placard1.9 m² 1x Dressing4.1 m² 1x Débarras1.8 m² 1x Salle de douche / toilettes4.4 m² 1x Salle de douche2.3 m² 1x Salle de bains7.9 m² 1x Toilettes1.5 m²
Honoraires à la charge du vendeur. Dans une copropriété de 54 lots. Aucune procédure n'est en cours. Classe énergie D, Classe climat B Montant estimé des dépenses annuelles d'énergie pour un usage standard : entre 1400.00 et 1800.00 sur les années 2021, 2022 et 2023 (abonnements compris). Les informations sur les risques auxquels ce bien est exposé sont disponibles sur le site Géorisques : georisques.gouv.fr.