Honoraires à la charge de l'acquéreur (Prix hors honoraires : 147058.64 euros).
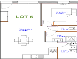
Je suis une maison de plain-pied, actuellement en pleine rénovation pour être au top de ma forme ! Avec mes 50,71 m2, j'offre un séjour lumineux avec cuisine ouverte équipée, parfait pour mitonner des bons petits plats. Une belle chambre vous attend pour des nuits paisibles, ainsi qu'une salle d'eau moderne et des WC indépendants (parce que l'intimité, c'est important !). Et cerise sur le gâteau, je possède également un jardin de 86 m2 où vous pourrez siroter votre café, organiser des barbecues ou même installer un potager. Pour vous faciliter la vie, je dispose de deux places de stationnement et suis situé dans une copropriété horizontale de 13 logements, au calme, à un peu plus d'un kilomètre des commodités. Alors, prêt(e) à venir me rencontrer ? « Les informations sur les risques auxquels ce bien est exposé sont disponibles sur le site Géorisques : www.georisques.gouv.fr » Honoraires : 4 % TTC inclus charge acquéreur (147 059 EUR hors honoraires)
50.71 m²
3 016 €
2
1
1
1
4.00 %
1997
Est
2
1
Oui (13 lots)
Contact Maisons Et Compagnie
Contacter gratuitement à l'aide du formulaire ci-dessous.