UNE REHABILITATION AU DERNIER ETAGE AVEC TERRASSE ET PARKING
Bordeaux 33000
0
Honoraires à la charge du vendeur.
UN SITE PATRIMONIAL DE PRESTIGE EN PLEIN CENTRE DE BORDEAUX
Situé en plein centre historique, dans un des quartiers les plus anciens de Bordeaux, une situation idéale au coeur de la ville, largement desservie par les transports en communs dont le tramway. Venez découvrir, dans cet immeuble en pierre entièrement réhabilité et surélevé, un lieu de vie unique. Façade en pierre ravalée, menuiseries neuves, volets en bois identiques à ceux d'origines, matériaux rappelant la passé du bâtiment, porche d'entrée restauré, tout participe à la remise en valeur patrimoniale du site.
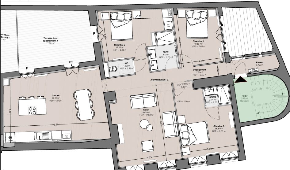
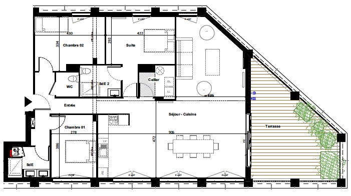
Venez découvrir ce magnifique T4 situé en R+1/R+2 (dernier étage) de cette petite copropriété à taille humaine. Vous trouverez d'abord une petite terrasse de 4m2, menant à l'entrée de l'appartement avec WC indépendant et son lave main. En complément, un deuxième WC indépendant ainsi qu'un espace buanderie pour lave linge et sèche linge. Coté nuit, 3 suites parentales dont une avec dressing et salle de bains double vasque avec douche et baignoire. Chaque suites à sa salle d'eau, son placard ainsi qu'une ouverture sur une terrasse extérieure.
A l'étage, vous trouverez une magnifique pièce de vie traversante est-ouest avec 3mètres de hauteurs sous plafond, de 41m2 donnant sur une magnifique terrasse intimiste de 23m2.
L'aménagement intérieur de l'appartement est fonctionnel, confortable et haut de gamme. Il est réalisé avec des matériaux sélectionnés pour leurs qualités techniques, leur durabilité et leur esthétique.
UN SITE PATRIMONIAL DE PRESTIGE EN PLEIN CENTRE DE BORDEAUX
Honoraires à la charge du vendeur. Dans une copropriété de 12 lots. Aucune procédure n'est en cours. DPE en cours. Les informations sur les risques auxquels ce bien est exposé sont disponibles sur le site Géorisques : georisques.gouv.fr.