UNIQUE - TERRAIN À BATIR - AVEC PERMIS DE CONSTRUIRE
La Destrousse 13112
0
Honoraires à la charge du vendeur.
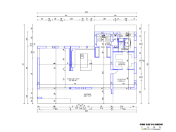
PROJET ARCHITECTURAL D'EXCEPTION - Terrain à bâtir de 921 m2 avec permis de construire validé repondant aux exigences RT 2012 pour un confort thermique optimisé. Situé dans un cadre exceptionnel, ce terrain viabilisé de 921 m2 offre une opportunité unique de construire une magnifique villa contemporaine en position dominante, tout en restant proche des commodités. Le permis de construire, validé en mairie et purgé de tout recours, permet une constructibilité conséquente, une opportunité rare à saisir ! Viabilités en bordure. Les plans actuels prévoient une villa T5 aux volumes généreux et à l'architecture élégante. D'une superficie habitable de 190 m2, elle comprendra: o au niveau principal : une spacieuse pièce à vivre de 90 m2, lumineuse et ouverte sur l'extérieur, un WC invité, une Master room de 37 m2 comprenant dressing, salle de bain et WC indépendant. La façade au sud disposera de grandes ouvertures sur le jardin o à l'étage : trois chambres de 15 m2 chacune avec accès à une grande terrasse de 47,18 m2. o en R-1 (sous-sol) : un garage spacieux de 60 m2 avec accès voiture par la façade nord, une salle de jeux de 64 m2, une buanderie de 13 m2, un WC avec lave-mains ainsi qu' un vaste vide sanitaire situé dans la partie enrochée. Ce terrain est l'opportunité rêvée pour réaliser votre projet de vie dans un environnement recherché. Choix libre constructeur. Ce terrain vous est présenté par Astone Immobilier, Contacter Océane WAICHE (Agent Mandataire Commercial immatriculé au RSAC de Marseille sous le numéro 828018879) au +33(0)6.18.58.03.22 ou par mail : oceanew@astoneimmo.com pour voir le terrain et vous faire présenter le permis. Honoraires à la charge du vendeur inclus dans le prix. Les informations sur les risques auxquels ce bien est exposé sont disponibles sur le site Géorisques : www.georisques.gouv.fr
921 m²
320 €
921 m²
Sud
8
Oui
Contact WAICHE
Contacter gratuitement à l'aide du formulaire ci-dessous.