Honoraires à la charge de l'acquéreur (Prix hors honoraires : 400000 euros).
Maison - Un Potentiel à Saisir
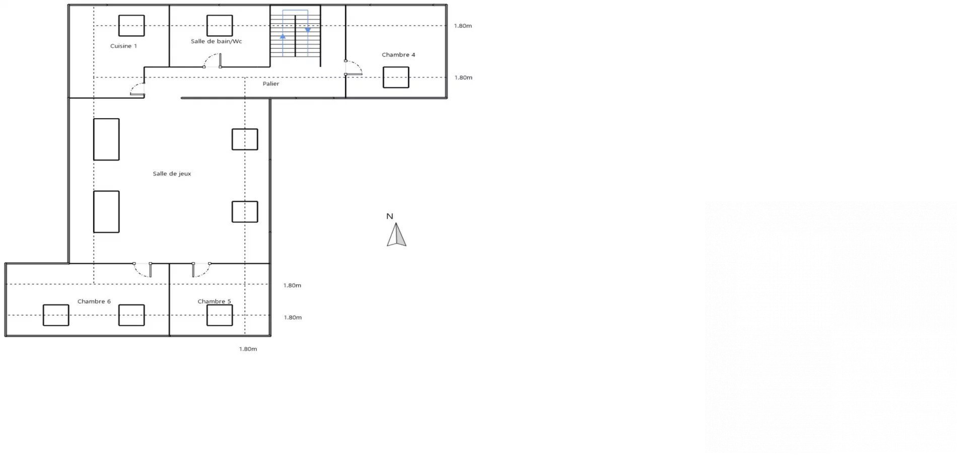
1- Imaginez-vous dans cette spacieuse maison mitoyenne 1 côté de 396 m², nichée sur un terrain de 719 m², dont un jardin de 480 m². Construite en 1970, cette propriété de 8 pièces, dont 5 chambres, vous offre un immense potentiel de rénovation pour créer le foyer de vos rêves.
2- Investisseur? Plusieurs possibilités sont en cours d'étude. N'hésitez pas à prendre contact.
Une Toiture en Ardoise et des Ouvertures en PVC
Avec sa toiture en ardoise et ses ouvertures en PVC à double vitrage, cette maison allie charme et modernité. L'intérieur, à rénover, vous permet de laisser libre cours à votre créativité pour transformer chaque espace selon vos envies.
Un Espace de Vie Généreux
Sur deux niveaux, cette maison offre une surface habitable de 396 m² et une surface au sol de 397 m². La cuisine est aménagée, prête à être personnalisée pour devenir le coeur culinaire de votre maison. Une salle de bains et une salle d'eau, ainsi que deux WC, complètent les commodités intérieures.
Un Extérieur
Le jardin de 480 m² est un véritable plus, idéal pour les journées ensoleillées et les soirées en famille. Vous profiterez également de 3 places de stationnement intérieures et 3 extérieures, offrant un accès pratique et sécurisé à votre domicile.
Des Commodités à Proximité
Diagnostics en cours de réactualisation.
Honoraires inclus de 5% TTC à la charge de l'acquéreur. Prix hors honoraires 400 000 . Classe énergie E, Classe climat F. Montant moyen estimé des dépenses annuelles d'énergie pour un usage standard, établi à partir des prix de l'énergie de l'année 2008 : 4200.00 . Date de réalisation du DPE : 11-03-2009. Les informations sur les risques auxquels ce bien est exposé sont disponibles sur le site Géorisques : georisques.gouv.fr.
Votre conseiller Tatiana Le Blevec Immo & Conseils : Gérante - Tatiana LE BLEVEC Carte T CPI56022023000000005 RCP GA3F24J GENERALI
396 m²
1 061 €
719 m²
8
5
1
1
2
5 %
1970
Oui
3
3
Consommations énergétiques
Logement économe
255
Logement énergivore (kWhEP/m2/an)
Émissions de gaz à effet de serre
Faible émission de GES
77
Forte émission de GES(kgeqCO2/m2/an)
Contact Tatiana Le Blevec Conseils
Contacter gratuitement à l'aide du formulaire ci-dessous.