Honoraires à la charge de l'acquéreur (Prix hors honoraires : 346700 euros).
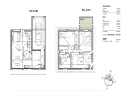
Découvrez cette magnifique maison individuelle en cours de construction, offrant un cadre de vie exceptionnel et une qualité de vie inégalée. Avec une surface habitable de 91,97 m², cette demeure de caractère se distingue par son architecture moderne et son élégance intemporelle. Située sur un terrain de 273 m², cette maison en étage vous accueille dans un environnement paisible et verdoyant. Le rez-de-chaussée offre une belle pièce de vie ouverte de 31 m², un cellier et un garage semi intégré. A l'étage, vous trouverez 3 chambres spacieuses dont une suite parentale avec sa salle d'eau, une salle de bains moderne et un WC indépendant. La cuisine, à aménager selon vos envies, est idéale pour les amateurs de gastronomie. Le jardin, véritable havre de paix, est parfait pour les moments de détente en famille ou entre amis. La toiture, composée de 4 pents et d'un toit terrasse, ajoute une touche d'originalité à cette propriété unique. Imaginez-vous dans cette villa, où chaque détail a été pensé pour votre bien-être. Profitez de la tranquillité de votre jardin, tout en étant à proximité de toutes les commodités. À seulement 5 minutes à pied, vous trouverez toutes les commodités: restaurants, commerces de proximités, école, médecins. Pour plus de renseignements, contacter moi 06.12.80.00.63
Dans une copropriété de 110 lots. Aucune procédure n'est en cours. Non soumis au DPE. Les informations sur les risques auxquels ce bien est exposé sont disponibles sur le site Géorisques : georisques.gouv.fr.