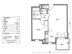
Forom Immobilier vous propose en exclusivité cet appartement T2 d'une surface de 42,07 m² situé au 2ème et dernier étage dans une résidence récente sur la commune d'Ussac, à proximité de Brive la Gaillarde.
Actuellement loué 540 CC, date de fin de bail 21/07/2026. Locataire sérieux en place depuis plus de 11 ans ! Rentabilité brute 7,62% !
Ce bien se compose de la façon suivante : - Un salon donnant sur le balcon - Une cuisine ouverte équipée - Un balcon - Une chambre avec placard - Une salle de bains - Un WC - 1 place de parking.
Informations clés :
- Chauffage et eau chaude individuels électriques
- Diagnostic de Performance Énergétique : D
- Montant des charges annuelles : 1 203
- Taxe Foncière 2024 : 642.
Honoraires charges vendeur.
Honoraires à la charge du vendeur. Dans une copropriété de 63 lots. Aucune procédure n'est en cours. Classe énergie D, Classe climat B Montant moyen estimé des dépenses annuelles d'énergie pour un usage standard, établi à partir des prix de l'énergie de l'année 2023 : entre 570.00 et 830.00 . Les informations sur les risques auxquels ce bien est exposé sont disponibles sur le site Géorisques : georisques.gouv.fr.
42.07 m²
2 020 €
5 m²
22 m²
2
1
1
1
2 sur 2
2008
1 (5 m²)
1
Oui
Oui (63 lots)
Consommations énergétiques
Logement économe
207
Logement énergivore (kWhEP/m2/an)
Émissions de gaz à effet de serre
Faible émission de GES
6
Forte émission de GES(kgeqCO2/m2/an)
Contact Forom® Immobilier
Contacter gratuitement à l'aide du formulaire ci-dessous.