Valras-Plage : appartement T3 de plain-pied avec jardin et calme assuré
Valras-Plage 34350
0
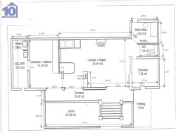
Dans une petite copropriété récente de 6 logements, à seulement 12 minutes à pied du centre-ville et de la plage, ce T3 en rez-de-jardin vous séduira par son calme, sa luminosité et son agencement fonctionnel. L'appartement de plain-pied s'ouvre sur une pièce de vie spacieuse de 30m² avec cuisine américaine équipée et nombreux rangements, le tout prolongé par une terrasse ensoleillée avec store ban et un jardin en pavés autobloquants. Côté nuit, deux chambres avec placards et accès terrasse, une salle d'eau avec fenêtre, WC suspendu indépendant, ainsi qu'un cellier buanderie ou dressing attenant. Le bien bénéficie d'un parking privé, d'une vue dégagée et d'un cadre paisible à proximité immédiate des commodités. Faibles charges, bon état général, idéal pour vivre à l'année ou en résidence secondaire.
61 m²
3 787 €
30 m²
38 m²
3
2
1
1
65 € / mois
2004
Sud
1
1
1
Oui (6 lots)
Consommations énergétiques
Logement économe
127
Logement énergivore (kWhEP/m2/an)
Émissions de gaz à effet de serre
Faible émission de GES
3
Forte émission de GES(kgeqCO2/m2/an)
Contact AGENCE DIX IMMOBILIER
Contacter gratuitement à l'aide du formulaire ci-dessous.