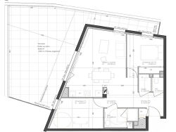
VANNES - Appartement 3 pièces 1er étage Sud- 65.72m² - ascenseur - terrasse 56.45m² - garage en sous-sol sécurisé. Dans un quartier proche de la nature et des commerces, au sein d'une résidence contemporaine aux dernières normes RT2020, au 1er étage, avec ascenseur, appartement 3 pièces de 65.72m² comprenant : une entrée avec placard, cellier, wc indépendant, séjour salon avec cuisine ouverte donnant accès à la terrasse de 56.45m², 2 chambres dont une avec placard, une salle d'eau, Garage en sous-sol sécurisé Prix promoteur - frais de notaire réduits - Les informations sur les risques auxquels ce bien est exposé sont disponibles sur le site Géorisques : www.georisques.gouv.fr. Photos non contractuelles - Suggestions d'aménagements Copropriété de 22 lots - dont 19 lots habitation. (Pas de procédure en cours). Charges annuelles : 950 euros.