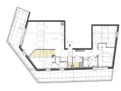
VANNES - Appartement 4 pièces - 5ème étage - Sud - 95.48m² - ascenseur - terrasse 49.81m² - double garage en sous-sol sécurisé. Dans un quartier bénéficiant d'un emplacement idéal proche de la nature et des commerces, dans une belle résidence contemporaine aux dernières normes, situé au 5ème étage, avec ascenseur, appartement 4 pièces de 95.48m² exposé Sud, comprenant : une entrée avec placard, dégagement, grand séjour salon avec cuisine ouverte donnant accès à la terrasse de 49.81m², 3 chambres avec placards, deux salle d'eau, wc indépendant, cellier. Double garage en sous-sol sécurisé. Prix promoteur - frais de notaire réduits - Les informations sur les risques auxquels ce bien est exposé sont disponibles sur le site Géorisques : www.georisques.gouv.fr. Photos non contractuelles - Suggestions d'aménagements Copropriété de 22 lots - dont 19 lots habitation. (Pas de procédure en cours). Charges annuelles : 1368 euros.