VANNES - LOCAL D'ACTIVITE DE 166.36m² - EN REZ DE CHAUSSEE - TERRASSE ET JARDIN - STATIONNEMENTS
Vannes 56000
0
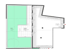
VANNES - LOCAL D'ACTIVITÉ DE 166.36m² - EN REZ DE CHAUSSÉE - TERRASSE 47.29 M² ET JARDIN 174.58M² - STATIONNEMENTS A 2 km du Centre-Ville, sur un axe passant, situé au rez-de-chaussée d'une résidence 'd'architecture contemporaine aux normes RT2020, local d'activité de 166.36m² avec terrasse de 47.29m² et jardin de 174.58m². Stationnements privatifs. Cellule destinée à l' activité de bureaux et de services. Les entrées de la cellule du rez-de-chaussée depuis le parvis extérieur offrent, au-delà de la visibilité, une accessibilité parfaitement adaptée aux personnes à mobilité réduite. Prix promoteur - frais de notaire réduits - Les informations sur les risques auxquels ce bien est exposé sont disponibles sur le site Géorisques : www.georisques.gouv.fr Copropriété de 22 lots - dont 19 lots habitation. (Pas de procédure en cours). Charges annuelles : 1800 euros.