Goodshowcase

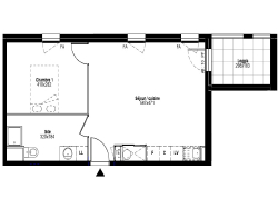
Vente appartement 2 pièces
200 000 €

Annonces similaires

Vente appartement

Vaulx-en-Velin 69120 - 0

224 400 €

...Ce ravissant T3 de 61,30m² saura vous séduire par sa situation, son séjour avec sa cuisine...

Voir l'annonce

Vente appartement

Vaulx-en-Velin 69120 - 0

226 254 €

...Il est aussi composé d'une salle de bain, de deux chambres ainsi qu'un WC indépendant...

Voir l'annonce

Vente appartement

Vaulx-en-Velin 69120 - 0

199 500 €

...Ce bien se compose : d'une entrée avec placard, d'une cuisine aménagée et équipée (four, plaque,...

Voir l'annonce

Vente appartement

Vaulx-en-Velin 69120 - 0

190 000 €

...A 15 min à pied de Carré de soie - Garage en sus disponible...

Voir l'annonce

Vente appartement

Vaulx-en-Velin 69120 - 0

179 000 €

...Découvrez cet appartement traversant de type 2 offrant un cadre de vie idéal au coeur de Vaulx...

Voir l'annonce