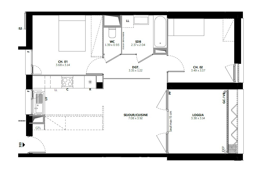
Dans le centre de Vaulx En Velin, au pied des commerces et de la mairie, je vous propose à la vente ce très bel appartement terrasse. Ce ravissant T4 saura vous séduire par sa situation, son séjour avec sa cuisine américaine donnant sur une très belle terrasse de 9,60m². Il est aussi composé d'une salle de bain, de trois chambres ainsi qu'un WC indépendant. L'appartement dispose d'un garage en sous-sol Bâtiment basse consommation Prix sous réserve, voir conditions en agence Visuel non contractuel Copropriété de 60 lots (Pas de procédure en cours). Charges annuelles : 1200 euros.