VENDU - Saint Malo - PROCHE GARE - Programme immobilier neuf - vente d'appartements neufs
Saint-Malo 35400
0
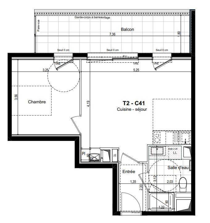
VENDU -Saint Malo - PROCHE GARE - Programme immobilier neuf - vente d'appartements neufs Appartements disponibles du T2 au T3 Un emplacement connecté : Dans un environnement résidentiel tranquille et idéalement placé, à mi-chemin des pôles historiques Intra-Muros et Saint-Servan et tout proche de la gare LGV (Gare à 12 minutes à pied), des écoles primaires, collèges et lycées ( à pied ou en bus), des commerces et supérettes au pied de la résidence, à 10 minutes en voiture de l'Intra Muros... Cette résidence contemporaine de grande qualité est composée de 3 bâtiments comprenant 82 appartements du studio au 4 pièces avec stationnements et locaux vélos. Elle affiche une architecture contemporaine et un coeur d'ilot arboré commun. Chaque bâtiment dispose de son hall d'entrée indépendant et de son ascenseur. Son architecture est soignée et contemporaine avec des matériaux de qualité. Elle offre également de belles expositions et larges espaces extérieurs : terrasse, loggia, balcon ou jardin. Des stationnements en sous-sol sont prévus. Des appartements neufs parfaitement agencés : Les prestations privilégient la qualité des matériaux et favorisent le confort au quotidien. - Balcon, terrasse ou jardin privatif pour la majorité des appartements - Grandes baies vitrées et larges surfaces extérieures - Menuiseries en alu - Placards aménagés - Vidéophone avec contrôle d'accès - Volets roulants électriques dans les pièces de vie - Sols parquet stratifié dans les pièces de vie, chambres et dégagements - Carrelage et faïence dans les pièces d'eau... Achat en principal, secondaire ou réaliser un investissement locatif à Saint-Malo : Ce programme neuf est éligible au dispositif Pinel* et vous offre l'opportunité, selon la durée d'engagement (6, 9 ou 12 ans), de bénéficier d'une réduction d'impôts jusqu'à 21 % de votre investissement immobilier, dans la limite de 300.000 euros et sous conditions. Prix promoteur - frais de notaire réduits. Les informations sur les risques auxquels ce bien est exposé sont disponibles sur le site Géorisques : www.georisques.gouv.fr Copropriété de 82 lots - dont 82 lots habitation. (Pas de procédure en cours). Charges annuelles : 648 euros.