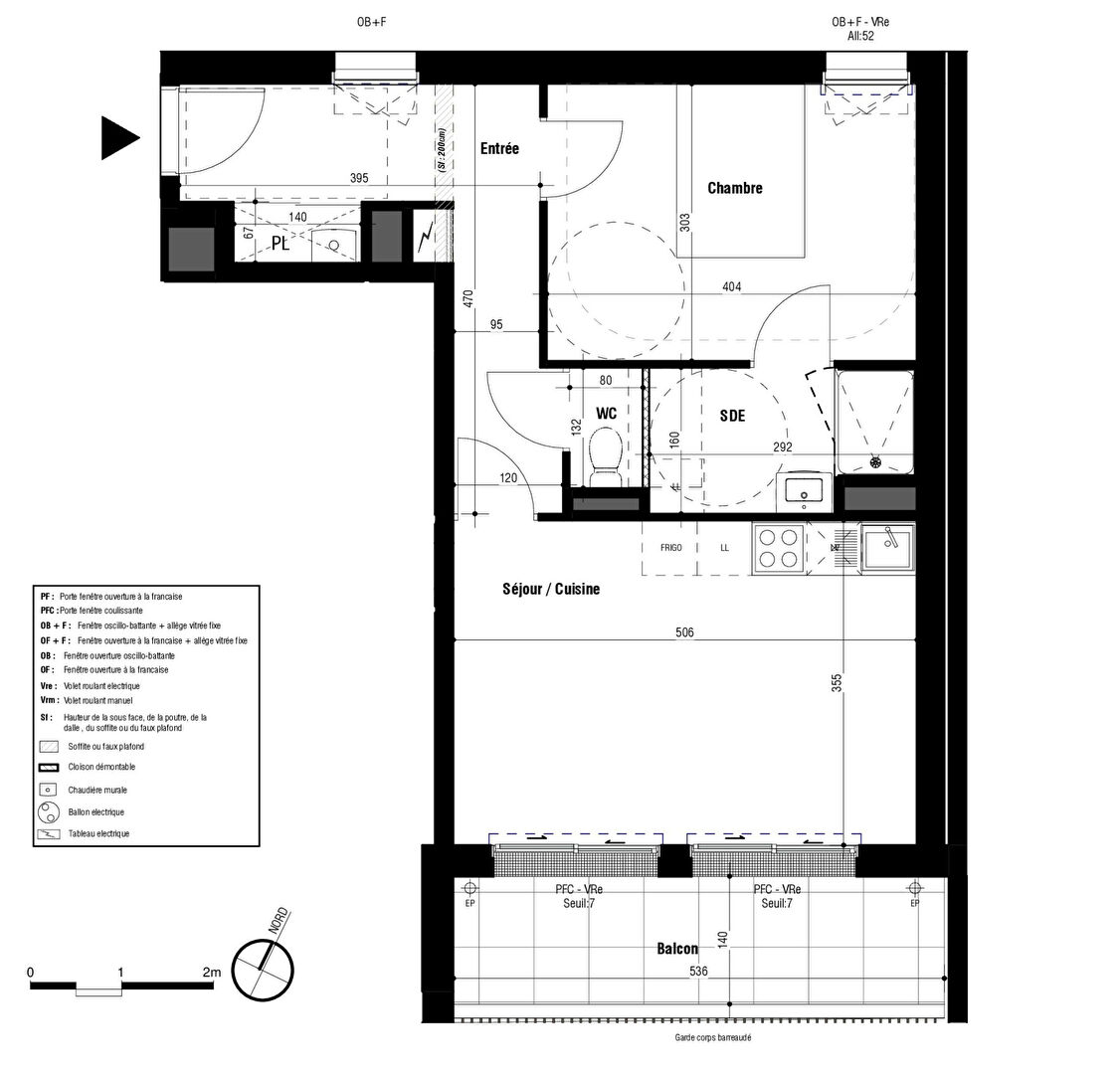
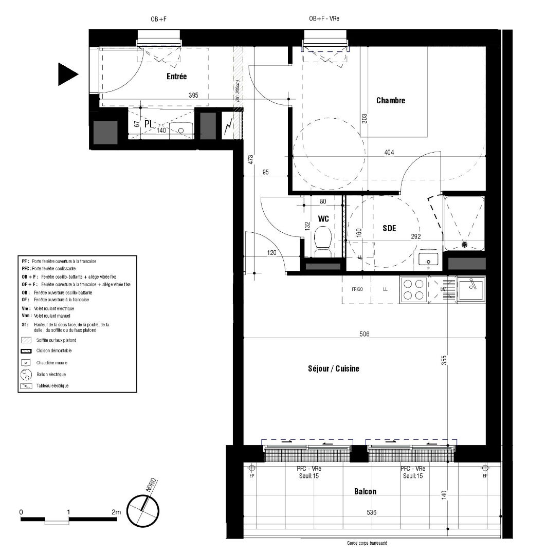
VENDU - SAINT NAZAIRE - PROGRAMME IMMOBILIER NEUF - Appartements neufs Résidence de 35 Appartements du T2 au T4 - Cette résidence est située à seulement 550m de la plage réputée de Porcé et est composée de 35 logements répartis du T2 au T4. Tous les appartements disposent d'espaces extérieurs et une partie d'entre eux profite d'une vue mer. Cette résidence intimiste prend place dans un environnement calme à proximité immédiate des commodités et du littoral. Cette nouvelle adresse Nazairienne bénédicie de la proximité des commodités, des écoles, des lieux de loisirs et des transports en commun. Cette résidence s'élève sur 4 niveaux et permettra à certains des appartements de profiter d'une vue mer. Chaque résident disposera d'un agréable espace extérieur et d'un stationnement privatif en sous-sol ou aérien. Ces appartements sont destinés aux différents projets : résidence principale, résidence secondaire et investissement locatif. Ce programme neuf est éligible au dispositif Pinel pour habiter ou investir à Saint-Nazaire. Le programme immobilier possède le label énergétique BBC RT 2012. Les informations sur les risques auxquels ce bien est exposé sont disponibles sur le site Géorisques : www.georisques.gouv.fr Copropriété de 35 lots - dont 35 lots habitation. (Pas de procédure en cours). Charges annuelles : 907 euros.