Vente Ancien Hôtel-Restaurant - Espaly-Saint-Marcel (350 m²) - Terrain de 1500 m²
Situé à Espaly-Saint-Marcel, ce vaste bien immobilier de 350 m² est une véritable opportunité pour les investisseurs ou particuliers en quête de projets. Ancien hôtel-restaurant, ce bâtiment, fermé depuis 4 ans, offre un potentiel de rénovation et d'aménagement unique.
Caractéristiques principales :
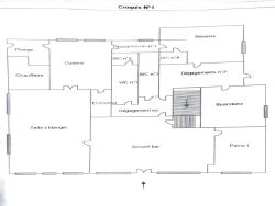
Superficie habitable de 350 m²
5 chambres spacieuses, chacune équipée de sa salle de douche
Grande salle de réception idéale pour des événements ou pour aménager un espace de vie convivial
Cuisine professionnelle, idéale pour un projet de restauration ou pour une utilisation domestique
Bar fonctionnel avec un cadre chaleureux
Salle annexe à aménager selon vos besoins (bureau, atelier, espace de loisirs, etc.)
Terrain clos de 1500 m² offrant une belle capacité d'extension ou d'aménagement extérieur
Les plus :
Nombreuses possibilités d'aménagement : transformation en maison familiale, maintien en tant que local commercial ou création d'un gîte/hôtel
Localisation stratégique à Espaly-Saint-Marcel, à proximité de commerces et services
Terrain privatif et clôturé, parfait pour aménager un jardin, des parkings ou d'autres installations extérieures
Idéal pour un projet professionnel ou un investissement immobilier
Ce bien offre un fort potentiel pour ceux qui souhaitent rénover et personnaliser un espace avec un grand terrain et de multiples usages possibles.
Chauffage centrale au gaz de ville.
N'hésitez pas à nous contacter pour plus de renseignements ou pour planifier une visite.
Gaelle Duplanil 06/78/16/91/02A visiter rapidement, contactez-nous pour organiser une visite Gaëlle DUPLANIL : MAXIHOME - 40 Boulevard Marcel Cachin 13500 MARTIGUES -Tél : 0678169102 email : araules@maxihome.email RCS 852 003 847 Agent commercial indépendant du réseau national Maxihome N° RSAC : 898 585 179 - Ville du greffe : RSAC LE PUY-EN-VELAY
350 m²
843 €
1500 m²
16
5
5
7
1990
Oui
Consommations énergétiques
Logement économe
127
Logement énergivore (kWhEP/m2/an)
Émissions de gaz à effet de serre
Faible émission de GES
29
Forte émission de GES(kgeqCO2/m2/an)
Contact Maxihome
Contacter gratuitement à l'aide du formulaire ci-dessous.