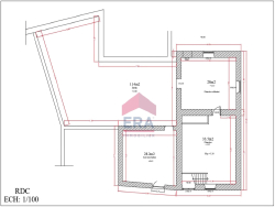
Maison 1 pièce à vendre au coeur d'un village calme, proche d'Argelès-Gazost, à proximité d'un parking. Elle est doté d'un petit jardin plein sud. Cette maison à vendre est à restaurer entièrement, grâce à ses 140 m² de nombreuses possibilités d'aménagement sont possibles. Composé d'un jardin exposé plein sud, vous pourrez profitez du soleil tout au long de l'année. Elle est à proximité des commodités ainsi qu'à l'entrée des vallées de station de ski de Cauterets, Luz-Ardiden, Barèges et de Gavarnie. Vous trouverez de beaux sites naturels comme le Pont d'Espagne, le Cirque de Troumousse, le Cirque de Gavarnie et pleins d'autres encore. Cette maison conviendra parfaitement pour un investissement ou pour profiter de belles vacances. Contactez notre agence Era Gaves Bigorre Immobilier; spécialiste de l'immobilier à Argelès-Gazost et ses alentours, pour plus d'informations.