Vente Murs de boutique 134 m² - 75011 Paris - Parmentier/Folie
Paris 75011
0
Honoraires à la charge de l'acquéreur (Prix hors honoraires : 1190000 euros).
GIFOM Vente murs de boutique 134 m² prox. Oberkampf-République 75011 PARIS.
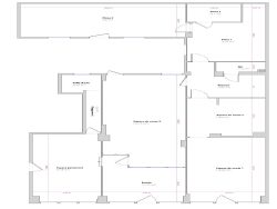
Situé entre l'avenue de la République et la rue Oberkampf , à 2 pas des métro Oberkampf et Parmentier, local commercial - boutique de 134,10 m² avec linéaire de vitrine de 10 mètres. Ce local, divisible, se compose de trois pièces sur rue, deux espaces articulés autour d'une cour calme, ainsi que deux salles d'eau avec WC. L'ensemble est facilement aménageable et divisible selon vos besoins avec 6 entrées possible (3 sur rue, une sur parties communes et 2 sur cour). Idéal investisseur ou exploitant pour tous types d'activités libérale-médical, Pop-up store, location saisonnière, espace de coworking ou bureaux partagés. A voir rapidement !
Prix de vente : 1 250 000 FAI. Réf. Agence : VEMU 980-01. GIFOM - Spécialiste en immobilier Commercial Site internet : https://gifom.octissimo.com/
134 m²
9 328 €
5.04 %
460.00 € / mois
1900
Oui (38 lots)
Consommations énergétiques
Logement économe
203
Logement énergivore (kWhEP/m2/an)
Émissions de gaz à effet de serre
Faible émission de GES
5
Forte émission de GES(kgeqCO2/m2/an)
Contact Maxime MERIENNE
Contacter gratuitement à l'aide du formulaire ci-dessous.