Rare, située dans le quartier historique au coeur du Marais, secteur Saint-Gervais, à proximité immédiate de la place Sainte-Catherine et non loin de la place des Vosges, dans un environnement agréable et commerçant, boutique de 92 m² comprenant :
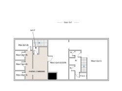
- RDC de 31 m² divisé en 2 espaces, - Sous-sol de 55 m² en accès direct, divisé en 3 espaces (une première salle de 20m² avec WC, une deuxième salle qui était à usage de cuisine avec point d'eau, un 3ème espace idéal pour stockage) et une cave de 7 m² en accès direct. Il est à noter que le sous sol bénéficie d'une sortie séparée sur parties communes.
Tous commerces possibles, la boutique a été exploité en restaurant mais est dépourvu de conduit d'extraction aux normes. À voir rapidement, idéal exploitant ou investisseur.
Prix de vente : 600 000 FAI. Réf. Agence : VEMU 988. GIFOM - Spécialiste en immobilier Commercial Site internet : https://gifom.octissimo.com/
92 m²
6 522 €
4.35 %
180.00 € / mois
1900
Oui (33 lots)
Contact Mathieu GESTIN - GIFOM
Contacter gratuitement à l'aide du formulaire ci-dessous.