Vente T3 de 57 m², en rez-de-jardin Lannion (22300)
Lannion 22300
0
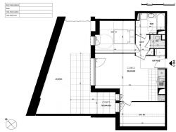
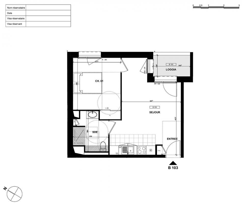
Côtes-d'Armor, (22300) Lannion, à deux pas du centre-ville, des commerces et de la gare, découvrez ce T3 de 57 m² habitables en rez-de-chaussée avec de beaux extérieurs ( 39 m² ) + Parking + cave.
Il dispose d'une terrasse de 15,9 m² prolongée par un jardin privatif de 23,75 m², accessible depuis la pièce de vie.
Deux chambres, salle d'eau, WC séparés.
Accès PMR, Résidence sécurisée
Prix : 226 000 euros HAI
Honoraires à la charge du vendeur.
Infos et visite : 06 22 40 03 11
l.kermoal@proprietes-privees.com
Des prestations de standing pour un ensemble de qualité, d'un EXCELLENT NIVEAU DE CONFORT MODERNE ET D'ISOLATION ainsi que DE FAIBLES CHARGES DE COPROPRIÉTÉ.
Notice descriptive complète sur demande. Photos non contractuelles.
Remise des clés dans le dernier trimestre 2027 .
Selon l'article L.561.5 du Code Monétaire et Financier, pour l'organisation de la visite, la présentation d'une pièce d'identité vous sera demandée. Cette annonce a été rédigée sous la responsabilité éditoriale de Laurence KERMOAL agissant sous le statut d'agent commercial immatriculé au RSAC SAINT BRIEUC 822474235 auprès de SAS PROPRIETES PRIVEES, au capital de 44 920 euros, ZAC LE CHÊNE FERRÉ - 44 ALLÉE DES CINQ CONTINENTS 44120 VERTOU ; SIRET 487 624 777 00040, RCS Nantes. Carte Professionnelle Transactions sur immeubles et fonds de commerce (T) et Gestion immobilière (G) n°CPI 4401 2016 000 010 388 délivrée par la CCI Nantes - Saint Nazaire. Compte séquestre n°30932508467 BPA SAINT-SEBASTIEN-SUR-LOIRE (44230). Garantie GALIAN-SMABTP - 89 rue de la Boétie, 75008 Paris - n°28137 J pour 2 000 000 euros pour T et 120 000 euros pour G. Assurance responsabilité civile professionnelle par GALIAN-SMABTP n° de police 28137.J
Mandat réf : 421819 - C004T3
Le professionnel garantit et sécurise votre projet immobilier.
Laurence KERMOAL (EI) Agent Commercial - Numéro RSAC : SAINT BRIEUC 822474235 - .
57 m²
3 965 €
3
2
2026
Ouest
Nord
Oui
Oui
Contact Laurence KERMOAL
Contacter gratuitement à l'aide du formulaire ci-dessous.