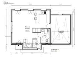
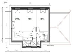
Rare !! Découvrez cette villa individuelle neuve de 4 pièces située dans le quartier ultra résidentiel du Vignal. Cette magnifique propriété offre un cadre de vie préservé dans un environnement paisible. Elle beneficie d'une position dominante offrant une vue dégagée sur les environs. Son exposition sud/ouest garantit une luminosité optimale tout au long de la journée. À l'intérieur, vous serez séduit par un espace de vie spacieux de 46 m² env. comprenant un grand et lumineux séjour ainsi qu'un espace repas. La villa dispose de trois chambres confortables, chacune avec des rangements intégrés dont une suite parentale avec salle de douche privative. Une salle de bains au style très contemporaine complètent les commodités de cette villa. Les grandes terrasses accessibles depuis le séjour et la cuisine vous permettent de profiter de l'extérieur, tout en bénéficiant d'une vue dégagée. Un garage double et deux parkings extérieurs sont inclus. Cette villa neuve se distingue également par son calme absolu, le cadre campagne et son terrain de 600 m² complanté et arboré. Respecte la réglementation thermique RE2020 Assurance dommage ouvrage et décennale : Bénéficiez de la tranquillité d'esprit grâce à ces assurances essentielles. Frais de notaire réduitrs . Ne manquez pas cette opportunité unique de vivre dans une villa neuve offrant confort, tranquillité et un cadre de vie préservé. Contactez-nous dès maintenant pour plus d'informations ou pour organiser une visite. Prix : 550 000 Contact Dally BERMOND GRANIT Immobilier 04.93.79.87.83 / 06.11.16.01.42 Réf. 2111-1 Honoraires charge vendeur Nos tarifs : https://assets.adaptimmo.com/bareme/06006/bareme.pdf N'hésitez pas à demander une visite virtuelle ou à distance !! « Les informations sur les risques auxquels ce bien est exposé sont disponibles sur le site Géorisques : www.georisques.gouv.fr »
109 m²
5 046 €
43.55 m²
4
3
1
1
2
2025
Coin cuisine
2
Contact GRANIT Immobilier
Contacter gratuitement à l'aide du formulaire ci-dessous.