MAXImmo vous propose dans le secteur très côté de la Ligne Paradis, cette splendide maison neuve d'environ 127 m².
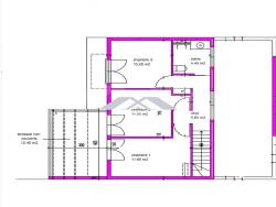
Elle est construite sur deux niveaux, au rez-de-chaussée séjour cuisine d'environ 45 m² ouverte sur une terrasse d'environ 13 m². La salle de bains est également prévu.
A l'étage, il y a 3 chambres d'environ 11 m² chacune, une chambre est ouverte sur une terrasse d'environ 13 m².
Douche italienne d'environ 5 m² ainsi qu'un dégagement se situent à l'étage.
Maison vendue avec garantie décennale et dommage ouvrage, possibilité de faire une défiscalisation girdin IS.
Livraison prévue en 2025.
Prix TTC et Honoraires à charge vendeur TTC Mandat n° 12455
Réseau MAXImmo - Pour plus de renseignements contactez Merwan au 06 93 83 29 29 ou par mail à merwan@maximmo.re
Plus d'informations et consultation de nos tarifs sur www.maximmo.re
Les informations sur les risques auxquels ce bien est exposé sont disponibles sur le site Géorisques : www.georisques.gouv.fr'
Honoraires à la charge du vendeur. Non soumis au DPE. Les informations sur les risques auxquels ce bien est exposé sont disponibles sur le site Géorisques : georisques.gouv.fr.
Votre conseiller MAXImmo : Merwan CORRONT
Agent commercial (Entreprise individuelle)