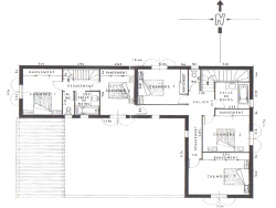
Un prix au m2 attractif ! A Saint Cyprien plage, au calme dans un quartier résidentiel, villa 4 faces composée de 4 chambres, un séjour cuisine, un bureau, une salle de bain. En complément, un appartement en duplex composé d'une cuisine séjour, une chambre et une salle d'eau. La maison, de construction traditionnelle, bénéficie d'une double terrasse, un jardin, un espace de stockage, un garage et un forage. Possibilité de stationner un camping car sur la propriété. Un bien idéal pour une grande famille ou un projet de chambre d'hôtes, gîtes ou colocation. Pour une visite, contactez Pierre DORNIER, agence LAVILLE IMMO au 06 11 03 47 20 RSAC No828 832 824 - EI - Ville du greffe : PERPIGNAN. Les informations sur les risques auxquels ce bien est exposé sont disponibles sur le site Géorisques : https://www.georisques.gouv.fr.
205 m²
2 756 €
700 m²
7
4
18/04/2025
1989
Sud
1
Oui (56 lots)
Consommations énergétiques
Logement économe
124
Logement énergivore (kWhEP/m2/an)
Émissions de gaz à effet de serre
Faible émission de GES
15
Forte émission de GES(kgeqCO2/m2/an)
Contact DORNIER
Contacter gratuitement à l'aide du formulaire ci-dessous.