Villa 5 pièces hors lotissement 530m2 de terrain ST BONNET D
Saint-Bonnet-de-Mure 69720
0
Honoraires à la charge du vendeur.
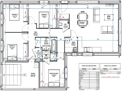
Située au coeur de ST BONNET DE MURE, commune prisée de l'Est Lyonnais, vous profiterez de la proximité des commerces, écoles, et accès rapides vers Lyon et l'aéroport. Votre agence SUBLIMO vous propose une maison individuelle neuve d'environ 106 m2 habitables de plain-pied, elle vous séduira par ses volumes généreux et son environnement résidentiel calme. Implantée sur un terrain de 530 m2, cette maison hors lotissement offre un cadre de vie privilégié avec plus de tranquillité et de liberté d'aménagement. La maison s'organise autour d'une spacieuse pièce de vie de plus de 40 m2, baignée de lumière, permettant d'accueillir un salon, une salle à manger et une cuisine ouverte. Cet espace convivial est idéal pour la vie de famille et les moments de partage. La partie nuit comprend une suite parentale avec SDO privative, ainsi que trois chambres supplémentaires. Le bien dispose également de :
une salle de bains avec baignoire et double vasque deux WC indépendants un cellier un garage de 15,5 m2
Cette maison neuve bénéficie d'une conception moderne, d'une distribution optimisée et d'un terrain offrant de nombreuses possibilités d'aménagement extérieur (terrasse, piscine, jardin).
Villa
106 m²
3 952 €
40 m²
530 m²
5
4
1
1
2
Sud
Est
2
1
Contact BELLET
Contacter gratuitement à l'aide du formulaire ci-dessous.