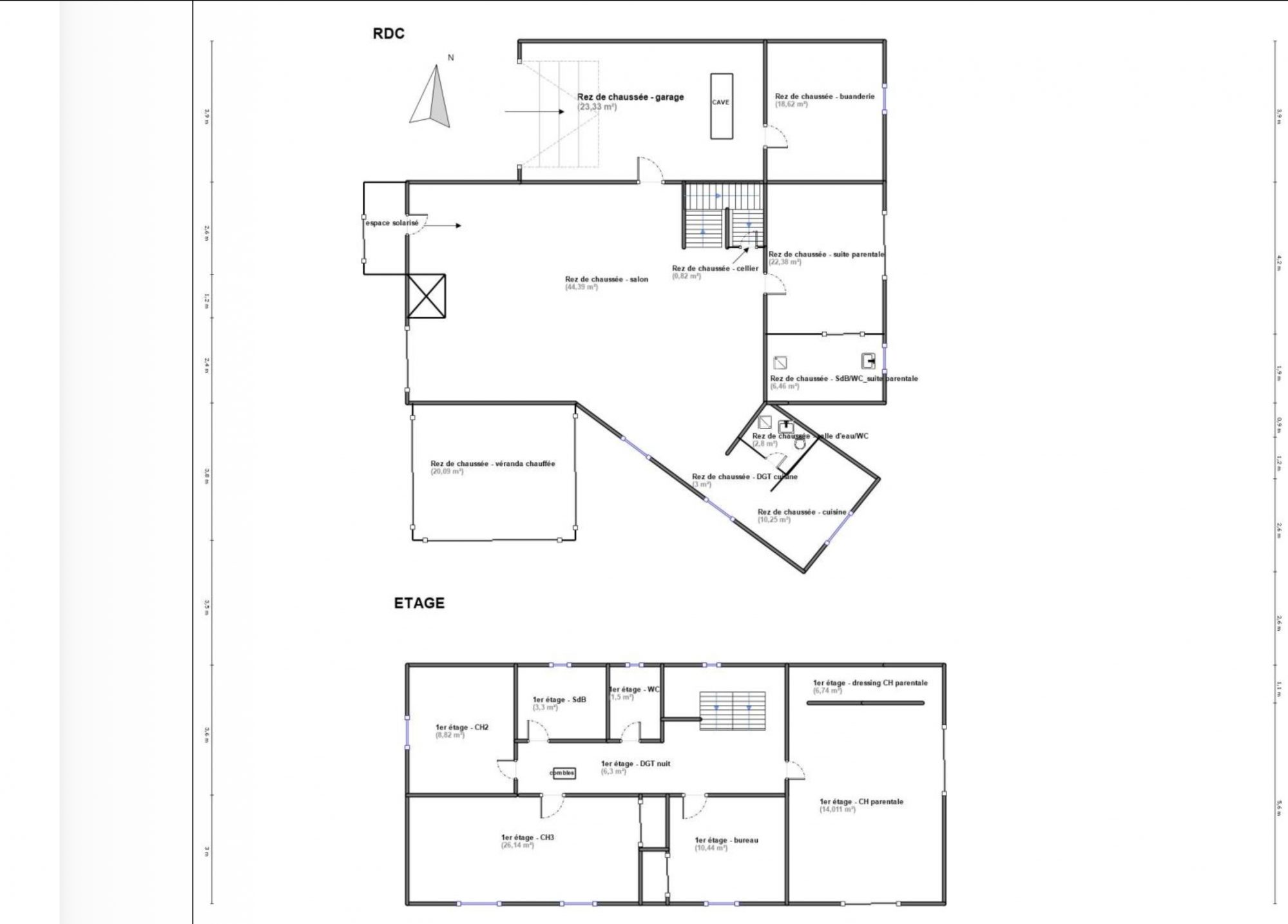
PREMI'HOME vous propose à la vente cette belle maison d'env 191m2 sur deux niveaux, située dans l'un des secteurs les plus recherchés entre d'Aix-en-Provence et Puyricard, entirement rénonvée et repensée par une architecte d'interieur, implantée sur un terrain clos et paysagé de 1400 m2, offrant calme, confort et prestations de standing. Au rez-de-chaussée, vous trouverez : Une entrée accueillante ouvrant sur une vaste pièce de vie baignée de lumière, une cuisine moderne avec îlot central, ouverte sur l'espace salle à manger, un salon chaleureux avec cheminée, idéal pour les moments en famille, une suite parentale offrant intimité et confort, avec dressing et salle d'eau privative et des WC séparés À l'étage, vous truverez une suite junior avec salle d'eau et WC, une chambre avec dressing, un bureau pouvant faire office de quatrième chambre, une salle d'eau indépendante et WC. Côté extérieur, le jardin, entièrement aménagé et clos, a été conçu pour profiter pleinement de la douceur provençale avec une piscine élégamment intégrée, un terrain de pétanque, et divers sspaces détente. La maison est équipée d'une climatisation gainable, d'une buanderie, cave à vin sous l'escalier. Une dépendance aménagée (salle de sport / bureau / espace loisirs), un garage fermé. Double vitrage, vidéophone, finitions soignées. Située dans un environnement résidentiel prisé, cette villa offre un équilibre parfait entre tranquillité et proximité des commodités, à seulement quelques minutes du centre d'Aix-en-Provence. Visite virtuelle disponible sur l'annonce. Les informations sur les risques auxquels ce bien est exposé sont disponibles sur le site Géorisques.gouv.fr.
191 m²
6 780 €
1400 m²
8
4
1
2
3
31/12/2025
1940
Sud
10
1
Oui
Oui
Oui
Oui
Oui
Consommations énergétiques
Logement économe
81
Logement énergivore (kWhEP/m2/an)
Émissions de gaz à effet de serre
Faible émission de GES
2
Forte émission de GES(kgeqCO2/m2/an)
Contact Ribero
Contacter gratuitement à l'aide du formulaire ci-dessous.