Villa contemporaine de 200m2 sur parcelle de 484m2
Cugnaux 31270
0
Honoraires à la charge du vendeur.
Contactez Magali, IMMOJOY Fonsorbes de 9h à 21h tous les jours, pour découvrir cette magnifique et somptueuse villa de 200m2 avec piscine et garage près du quartier Hautpoul et de la base verte de La Ramée à Tournefeuille sur une parcelle de 484m2.
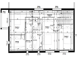
Composée de 2 niveaux, c'est une entrée puis une pièce de vie de + de 67m2 menant à une cuisine entièrement équipée et ouverte qui vous accueilleront. Le coin nuit du premier niveau propose une suite parentale de 19m2 avec double dressing aménagé et salle de douche/toilette, une buanderie, un cellier, un toilette indépendant et des placards aménagés.
A l'étage, en haut d'un bel escalier bois et métal, c'est un espace intimiste et fonctionnel avec ses trois chambres spacieuses dont une suite parentale de 27m2 avec son dressing aménagé, sa salle de douche/WC et son balcon baignée de lumière grâce à une grande baie vitrée de 2m qui vous séduiront.
Un garage de 34m2, une piscine et un espace extérieur tiré à 4 épingles viennent parfaire le tout.
Les + indéniables du bien : matériaux modernes de qualité, prestations haut de gamme, finitions soignées.
Contactez Magali L. pour venir visiter votre future villa d'exception. Cette annonce vous est proposée par LAURENT Magali - EI - NoRSAC: 880 666 557, Enregistré à Chambre de commerce et de l'industrie de TOULOUSE
200 m²
4 250 €
67 m²
484 m²
5
4
3
2
2024
1
Oui
Oui
Oui
Consommations énergétiques
Logement économe
29
Logement énergivore (kWhEP/m2/an)
Émissions de gaz à effet de serre
Faible émission de GES
1
Forte émission de GES(kgeqCO2/m2/an)
Contact LAURENT
Contacter gratuitement à l'aide du formulaire ci-dessous.