Villa d'architecte NEUVE avec piscine sur le mont Saint Clair à Sète vue MER/ETANG
Sète 34200
0
Honoraires à la charge du vendeur.
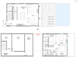
Maison d'Exception avec Vue Panoramique sur la Mer et l'Étang Découvrez cette maison unique en cours de construction, nichée sur les hauteurs du Mont-Saint-Clair. Offrant une vue imprenable sur la mer et l'étang, elle est implantée sur un terrain arboré, dans un cadre paisible et préservé. D'une superficie de 150 m² habitables avec 50 m² de dépendances, cette propriété se distingue par son architecture intégrée au paysage, avec un accès par des escaliers naturels. Actuellement en début de chantier, cette maison offre encore 10 mois de travaux, laissant la possibilité de choisir les matériaux et les finitions intérieures selon vos goûts. Une construction conforme aux nouvelles normes en vigueur, garantissant qualité, confort et performance énergétique. Une opportunité rare sur le marché pour ceux qui recherchent un véritable havre de paix avec un panorama exceptionnel. Pour plus d'informations ou organiser une visite, contactez-nous dès maintenant !