Immo Angels, spécialiste de la vente interactive, vous présente en exclusivité cette charmante maison de 133 m² sur un terrain arboré de 875 m², idéalement située dans un quartier paisible de Saint-Jean-de-Védas.
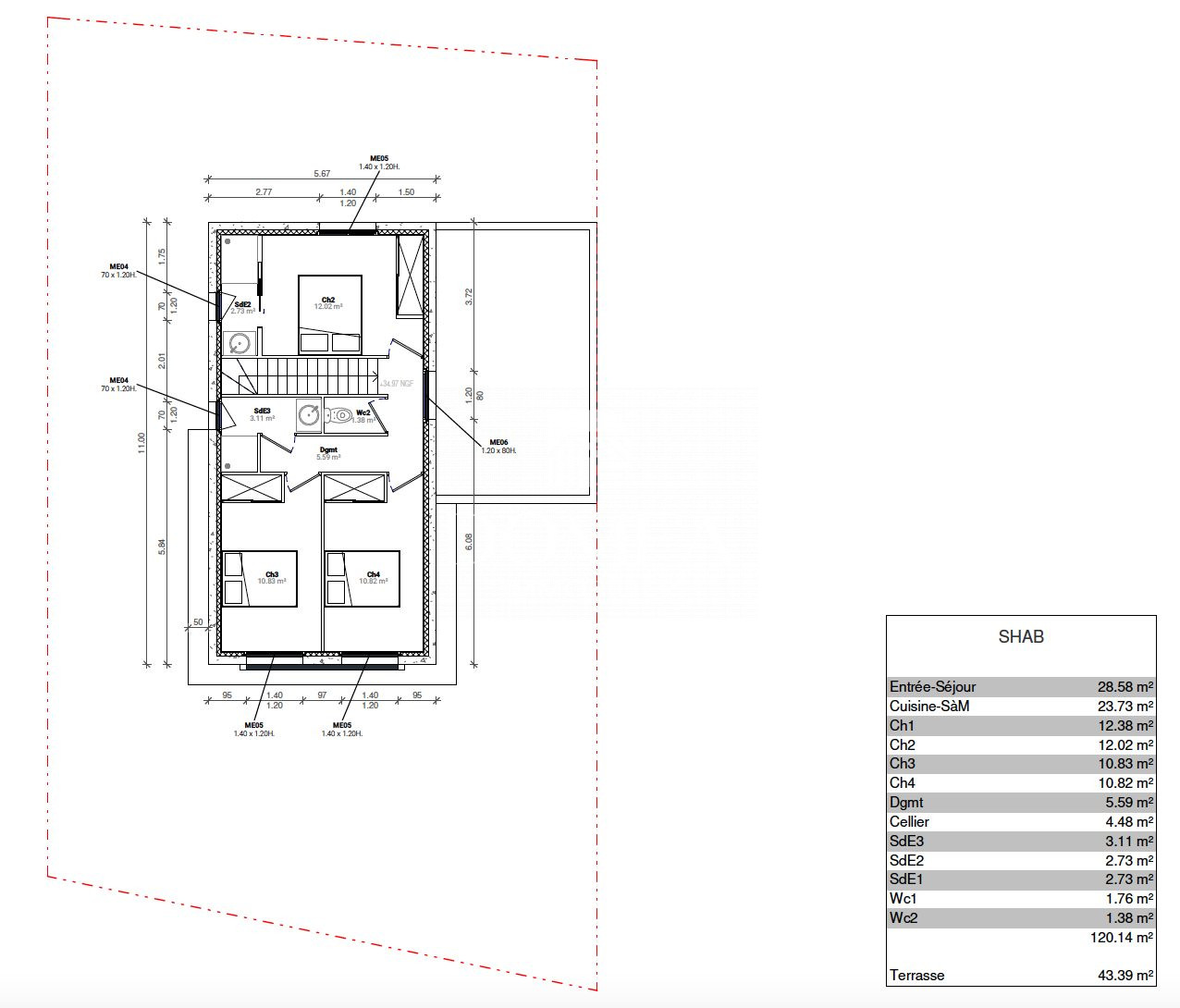
Un intérieur spacieux et fonctionnelDès l'entrée, vous serez séduit par ses volumes généreux. La maison offre 6 chambres bien agencées : 3 au rez-de-chaussée, parfaites pour éviter les escaliers, et 3 à l'étage, idéales pour préserver l'intimité de chacun. La pièce de vie, comprenant une cuisine ouverte sur une salle à manger de 29 m², baigne de lumière et invite à la convivialité.Avec ses deux salles d'eau modernes, l'une au rez-de-chaussée et l'autre à l'étage, la maison assure un confort quotidien à toute la famille.
Des extérieurs qui invitent à la détenteLe charme continue à l'extérieur, où une vaste terrasse de 80 m² vous attend pour vos repas en plein air avec barbecue.La grande piscine de 3,4 x 9 m, entourée de verdure, promet de beaux souvenirs d'été en famille ou entre amis. Des atouts supplémentairesDes combles de 40 m² et un vaste sous-sol de 104 m² complètent cette propriété et offrent un potentiel incroyable pour vos projets : rangement, atelier, salle de sport ou espace de loisirs.Côté stationnement, vous bénéficierez de 2 places de garage fermées ainsi que de 3 places de parking extérieures, un véritable avantage au quotidien. Cette maison, parfaitement entretenue et située dans un cadre agréable, offre un environnement privilégié à quelques pas des commodités.
DPE : Classe énergie C / GES C Estimation dépenses énergétiques : entre 1 389 et 1 880 (réf. 2023) Risques consultables sur : www.georisques.gouv.fr
VENTE INTERACTIVE
Prix de départ : 480 000 Le prix affiché correspond à une première offre possible, incluant les honoraires de négociation.Toutes les offres seront communiquées au vendeur, qui reste libre de choisir celle qu'il souhaite accepter.Honoraires à la charge du vendeur. Réservez dès maintenant votre créneau de visite en ligne sur le site 36h-immo ou contactez Kevin Boudeau, disponible 7 jours sur 7, au O6 77 O3 94 12.Agent commercial inscrit au RSAC de Saintes sous le numéro 984 170 902, il vous accompagnera dans la réalisation de votre projet immobilier.
Honoraires à la charge du vendeur. Classe énergie C, Classe climat C Montant estimé des dépenses annuelles d'énergie pour un usage standard : entre 1389.00 et 1880.00 sur les années 2021, 2022 et 2023 (abonnements compris). Les informations sur les risques auxquels ce bien est exposé sont disponibles sur le site Géorisques : georisques.gouv.fr.