L'agence 'MON BIEN A LA MER', spécialiste de l'immobilier neuf bords de Mer, vous présente :
L'exception sur l'Ile d'Oléron : Plein front de Mer, face au soleil levant au 8 bd de la Plage à SAINT TROJAN.
Une restauration d'un bâtiment historique de grand standing : Seulement 22 appartements et 11 Maisons, dans un domaine paysager privé avec piscine chauffée. Frais de notaire réduits.
Prestations de qualité, chauffe-eau thermodynamiques+panneaux rayonnants, ascenseur, parkings, caves, grande hauteur sous plafonds, parquets, domotique, placards terminés, carrelage Porcelanosa, appartements traversants : tout a été pensé pour votre confort.
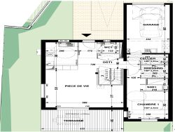
Maison 127m2 sur 413 m2 de terrain, entièrement finie (peintures, carrelage, parquet, jardin engazonné) sauf cuisine, comprenant : - Au rdc : séjour expo sud-ouest+sud-est 43m2, suite parentale avec dressing, cellier, wc. - A l'étage : 3 chambres, salle d'eau, salle de bains, wc séparés - extérieur : terrasse 20m2, jardin clôturé, garage.
Honoraires à la charge du vendeur. Non soumis au DPE. Les informations sur les risques auxquels ce bien est exposé sont disponibles sur le site Géorisques : georisques.gouv.fr.
Votre conseiller MON BIEN A LA MER : Gérant - .fr MON BIEN A LA MER Carte T CPI 2201 2018 000 025 040 RCP ACM IARD B1 7025278
Villa
126.7 m²
5 249 €
49 m²
365 m²
5
4
1
3
2 (séparés)
1
Contact mon bien à la mer
Contacter gratuitement à l'aide du formulaire ci-dessous.