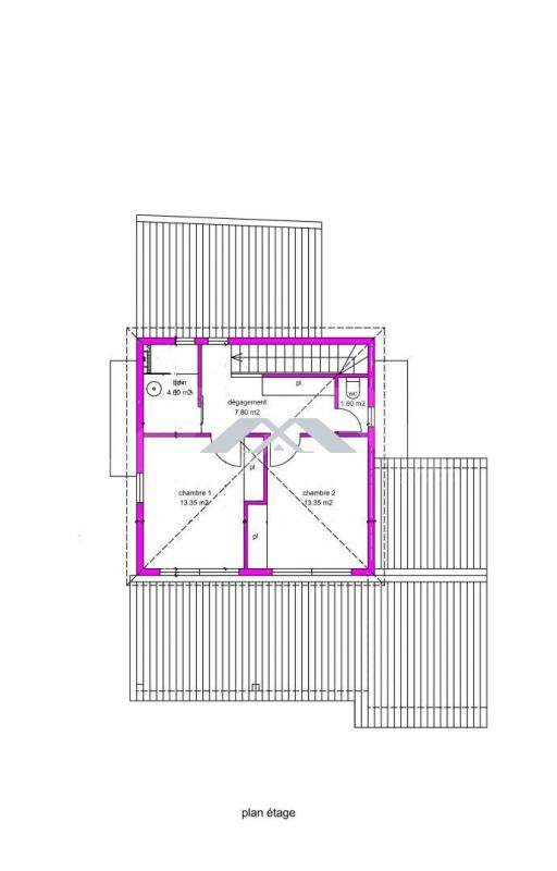
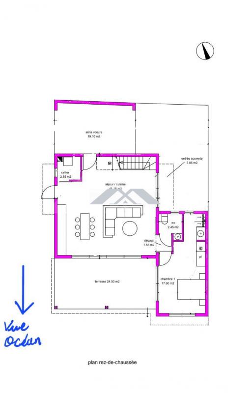
MAXImmo vous propose dans un emplacement idéal secteur Grand Bois cette superbe villa T4 de 100m² de plain pied de 2020 sous garantie décennale avec une vue magnifique depuis toutes les pièces et jouxtant un terrain agricole .
Composée de 3 belles chambres dont 1 suite parentale de 22m², d'un séjour ouvert sur une cuisine équipée bénéficiant d'un cellier.
Disposée sur un grand terrain d'environ 693m², elle offre un potentiel incroyable et est déjà disposée pour intégrer 2 logements permettant une belle rentabilité locative (devis construction déjà réalisés) et attentes de viabilisation en place.
Cette villa allie confort et modernité avec ses très belles hauteurs sous plafond et son design épuré ultra moderne. Toutes les pièces sont climatisées.
Equipée d'un chauffe eau solaire.
Honoraires à charge vendeur TTC Mandat n° 13 135
Réseau MAXImmo - Pour plus de renseignements contactez Ingrid au 06 92 92 57 39 ou par mail à ingrid@maximmo.re Plus d'informations et consultation de nos tarifs sur www.maximmo.re Les informations sur les risques auxquels ce bien est exposé sont disponibles sur le site Géorisques : www.georisques.gouv.fr'
Honoraires à la charge du vendeur. Non soumis au DPE. Les informations sur les risques auxquels ce bien est exposé sont disponibles sur le site Géorisques : georisques.gouv.fr.
Votre conseiller MAXImmo : Ingrid FRANCE
Agent commercial (Entreprise individuelle)