Villa familiale avec piscine et potentiel locatif ? Mont Vert, Saint-Pierre
Saint-Pierre 97410
0
Découvrez cette splendide villa avec de beaux volumes située à Mont Vert, dans la commune de Saint-Pierre, un secteur prisé pour son cadre de vie paisible et son emplacement stratégique, idéalement situé dans l'axe du CHU et de Terre Sainte.
Caractéristiques de la villa :
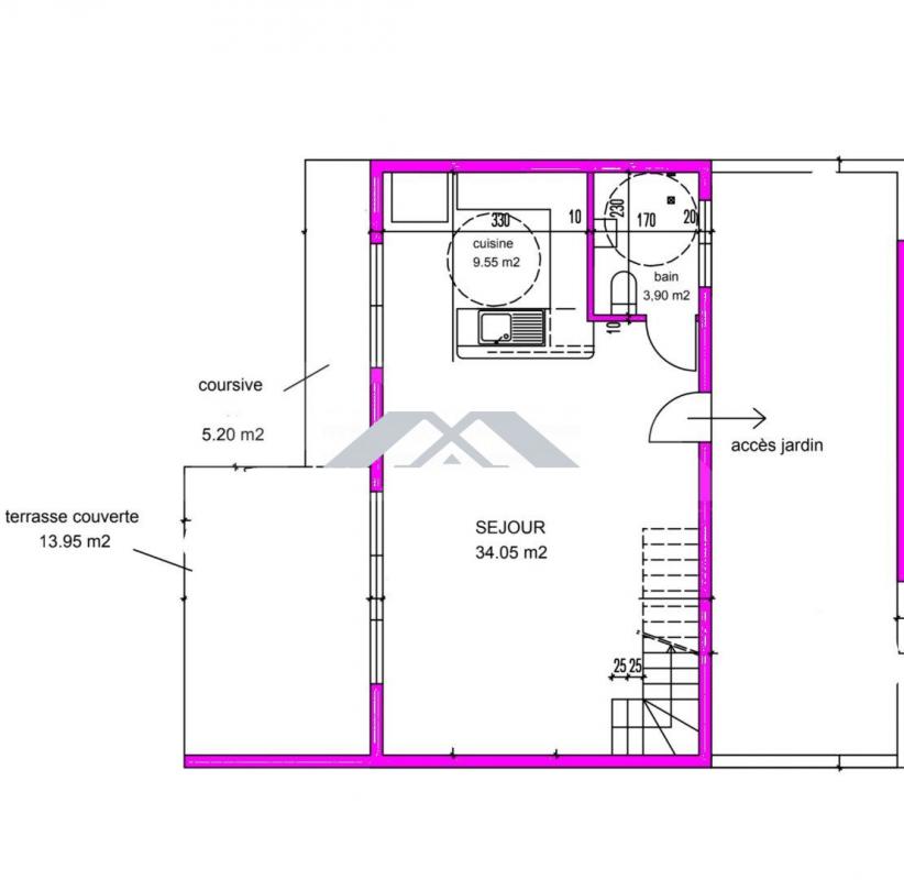
Rez-de-chaussée :
Grande cuisine neuve équipée (électroménagers sous garanties) ouverte sur un vaste salon lumineux.
Accès direct à un espace extérieur soigné avec :
Une piscine au sel en pierre naturelle.
Une dépendance aménagée en cuisine extérieure, idéale pour recevoir.
Suite parentale : grande chambre avec accès extérieur.
Salle d'eau spacieuse incluant buanderie et toilettes.
T2 indépendant entièrement équipé comprenant :
Une cuisine ouverte sur le salon.
Une chambre avec sanitaires.
Une terrasse privative avec jacuzzi.
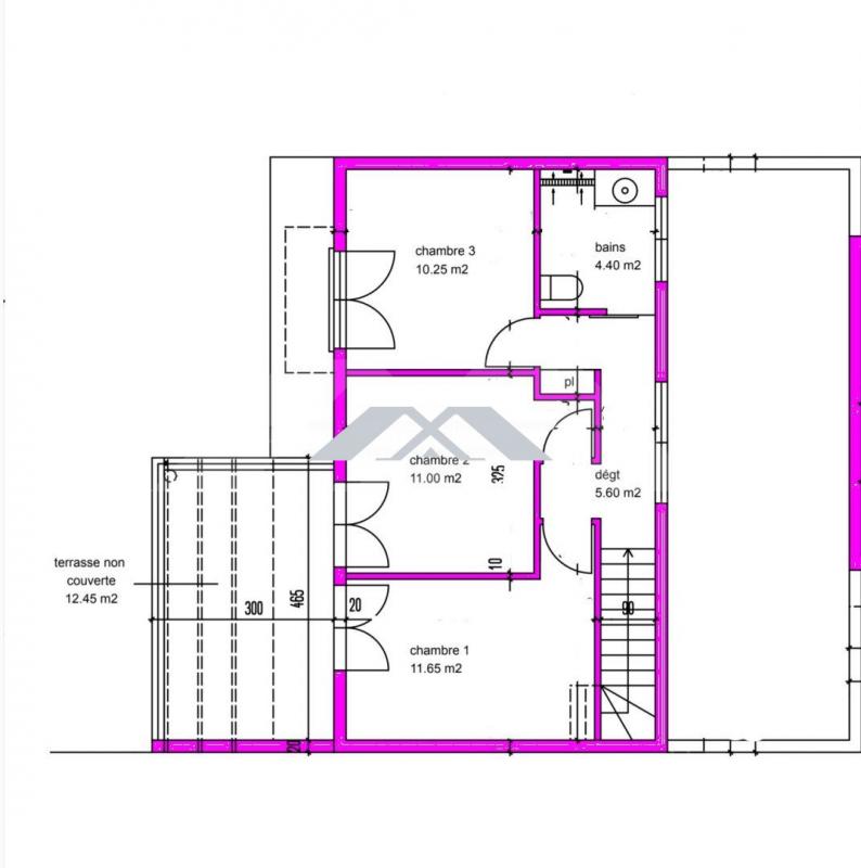
À l'étage :
Deux belles chambres climatisées avec placards.
Une salle d'eau équipée d'une douche, double vasque et toilettes séparées.
Points forts de cette propriété :
Idéale pour une grande famille grâce à ses 4 chambres climatisées et ses 3 salles d'eau.
Environnement calme : éloignée des nuisances sonores tout en restant proche des commodités, écoles, et plages de Saint-Pierre.
Revenus locatifs lucratifs : Aménagements adaptés pour la location saisonnière, permettant d'accueillir de 1 à 6 personnes.
Pourquoi choisir cette villa ?
Un cadre de vie exceptionnel, entouré de verdure.
Une configuration moderne et fonctionnelle, parfaite pour une résidence principale ou un investissement rentable.
Proximité des axes principaux et des lieux stratégiques de Saint-Pierre.
Ne manquez pas cette opportunité unique d'acquérir une villa clé en main, alliant confort, sérénité et rendement locatif.
Sous Garantie décennale (Maison, terrasse et piscine)
Contactez moi dès aujourd'hui pour organiser une visite ou obtenir plus d'informations.
A voir absolument !!