Villa T4 de 85,85 m² avec jardin, terrasse et suite parentale
Située dans un environnement agréable, cette villa 4 pièces de 85,85 m² sur deux niveaux offre de beaux volumes intérieurs et des espaces extérieurs appréciables.
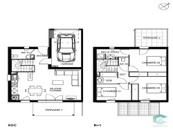
Au rez-de-chaussée, l'entrée dessert un hall fonctionnel, des WC indépendants, un accès direct au garage de 15,55 m², ainsi qu'un séjour-cuisine de 33 m² avec bar séparatif.
L'espace de vie s'ouvre sur une terrasse de 8 m² exposée sud-est et un jardin de 122 m². À l'étage, la villa dispose de deux chambres avec placard, d'une salle de bain, un second WC indépendant, ainsi que d'une suite avec salle d'eau privative et balcon-terrasse de 8 m², accessible uniquement depuis la chambre.
Pour stationner, vous profitez : Garage intégré Place de stationnement extérieure devant la villa Informations complémentairesBien situé au sein d'une ASL Charges d'ASL : 60 en 2023 / 22 en 2024 Taxe foncière : 1 452 Contactez-nous pour visiter ce bien !
Honoraires à la charge du vendeur. DPE en cours. Les informations sur les risques auxquels ce bien est exposé sont disponibles sur le site Géorisques : georisques.gouv.fr.
85.85 m²
2 854 €
8 m²
33 m²
122 m²
4
3
1
1
2 (séparés)
2015
1 (8 m²)
1
1
1
Contact C2i SUD OUEST
Contacter gratuitement à l'aide du formulaire ci-dessous.