Villa neuve de plain-pied Frais de notaire réduits Garan
Épinouze 26210
0
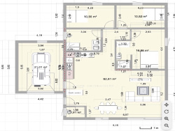
Villa neuve de plain-pied Frais de notaire réduits Garantie décennale Livraison fin 2026 Profitez d'un bien neuf aux nombreux avantages financiers :Frais de notaire réduits (environ 2 à 3 % au lieu de 7 à 8 %)Garantie décennale pendant 10 ans pour une tranquillité totale Découvrez cette superbe villa neuve de plain-pied de 104 m2, aux prestations haut de gamme, située sur un terrain clos avec terrasse, alliant confort moderne, qualité de construction et personnalisation complète. La maison se compose de :- Une pièce de vie lumineuse avec salon/séjour et cuisine équipée (électroménager inclus)- 3 chambres, dont une suite parentale avec salle d'eau privative et dressing- Une salle de bain principale- 2 WC indépendants- Un garage de 25 m2 Prestations et équipements
Chauffage gainable avec climatisation réversible
Volets roulants électriques
Portail motorisé avec vidéophonie
Terrasse
Terrain entièrement clos
Matériaux et finitions haut de gamme
Maison personnalisable selon vos goûts Le futur propriétaire pourra choisir :
Le carrelage grand format (généralement en 60x120)
La cuisine
Le mobilier sanitaire
Une maison pensée pour être unique, à votre image. Avantages complémentaires
Exonération de taxe foncière pendant 2 ans
Excellent rapport prestations / prix
Performance énergétique
Futur DPE : A / A, excellent pour ce type de constructionConfort thermique optimal et consommations maîtrisées.
Livraison prévue : fin 2026 Un bien rare, idéal pour une résidence principale ou un investissement de qualité, offrant sécurité, modernité et sérénité. Contacter Oceane Hernandez AGENCE IMMOCENTER06 33 61 20 52
Villa
103 m²
2 864 €
513 m²
4
3
1
1
2
2026
Sud
Est
4
1
Oui
Oui
Oui
Consommations énergétiques
Logement économe
2
Logement énergivore (kWhEP/m2/an)
Émissions de gaz à effet de serre
Faible émission de GES
2
Forte émission de GES(kgeqCO2/m2/an)
Contact HERNANDEZ
Contacter gratuitement à l'aide du formulaire ci-dessous.