? TOULON CAP BRUN VILLA T4 de 92 m² dans un domaine sécurisé, avec TERRASSES, JARDIN et GARAGE Dans le secteur prisé du CAP BRUN, à seulement 1 km de la MER, découvrez cette superbe villa/appartement T4 de 92 m² situé au calme, au sein d'un domaine sécurisé en lisière d'un espace boisé classé.
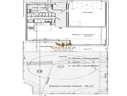
Ce bien, lumineux se compose : d'un Séjour Cuisine de 32 m² ouvrant sur une grande terrasse de 27 m² et le jardin de 78 m² donnant sur un espace boisé classé idéal pour vos moments de détente, un cellier buanderie, des wc salle d'eau à l'étage 3 chambres, 2 chambres avec placard et terrasse, une suite avec salle d'eau salle de bain avec baignoire double vasque, wc avec lave main . soyez patients cet appartement ne sera disponible qu'en juin 20271 GARAGE attenant et 2 box en sous sol ? Chauffage et rafraîchissement par pompe à chaleur (pilotable à distance via domotique)? Volets roulants motorisés? Chauffe-eau thermodynamique ? Résidence sécurisée et environnement verdoyant Un cadre de vie privilégié, entre nature et mer, parfait pour une résidence principale ou secondaire. ? Un bien rare sur le secteur du Cap Brun
Honoraires à la charge du vendeur. Dans une copropriété de 29 lots. Aucune procédure n'est en cours. Non soumis au DPE. Les informations sur les risques auxquels ce bien est exposé sont disponibles sur le site Géorisques : georisques.gouv.fr.
92.2 m²
6 963 €
32 m²
4
3
1
2
2 (séparés)
2025
Ouest
3
1
Oui
Oui (29 lots)
Contact SAJATIM
Contacter gratuitement à l'aide du formulaire ci-dessous.