Villa T5 neuve de 110m2 hab sur 520m2 de terrain, Le Grau d'0
Agde 34300
0
Honoraires à la charge du vendeur.
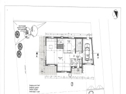
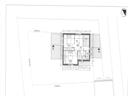
Le Grau d'Agde Villa contemporaine T4 neuve, frais de notaire réduits Exclusivité Prodeom immobilier Neuf. Dans un secteur résidentiel recherché du Grau d'Agde, quartier Baluffe, découvrez cette maison individuelle neuve T4 de 111m2, alliant architecture contemporaine, confort moderne et prestations de qualité. Flexibilité et adaptation possible (vente hors d'eau- hors d'air, plans modifiables... Implantée sur une belle parcelle de 520m2, la maison se développe sur deux niveaux et propose une distribution fonctionnelle et lumineuse : -Grande pièce de vie avec séjour et cuisine ouverte de 38,35 m2, à aménager selon vos envies -3 chambres confortables, dont 1 suite parentale en RDC. -Un bureau à l'étage de 7 m2, pouvant être aménagé en pièce supplémentaire -Salles d'eau modernes -WC séparés à chaque niveau -Garage de 17 m2 et 2 places de stationnements De larges ouvertures et des menuiseries équipées de volets roulants électriques assurent une luminosité optimale et un excellent confort thermique. Les extérieurs -Piscine en option, non incluse dans le prix -Terrain clôturé , avec possibilité d'ajouter l'aménagement paysagé en sup. -Terrasse d'environ 35 m2 -Parcelle de 520m2 -Environnement calme et résidentiel, à quelques minutes des plages et commodités Prestations et confort -Construction conforme RE 2020 -Climatisation réversible -Production d'eau chaude par cumulus thermodynamique, basse consommation -Carrelage aux choix -Faïence toute hauteur dans les pièces d'eau -Peintures finitions blanches -Menuiseries aluminium ou PVC -VMC hygroréglable -Porte d'entrée sécurisée 5 points... Fin des travaux pour 2026, frais de notaire réduits à 2%, et assurance dommages ouvrage. Exclusivité Prodeom immobilier, n'hésitez pas à nous contacter pour plus de précisions
Villa
111 m²
5 991 €
38 m²
520 m²
5
3
1
1
2
2026
Sud
2
1
2
Oui
Oui
Consommations énergétiques
Logement économe
30
Logement énergivore (kWhEP/m2/an)
Émissions de gaz à effet de serre
Faible émission de GES
5
Forte émission de GES(kgeqCO2/m2/an)
Contact Prodeom Immobilier
Contacter gratuitement à l'aide du formulaire ci-dessous.