Villa Familiale Connectée & Ultra-Équipée - Aix Saint-Mitre Au calme absolu, découvrez cette villa T6 de 2010 (226 m² au sol, véranda comprise) conçue pour allier confort technologique et praticité familiale sur un terrain de 596 m² avec piscine.
Une configuration pensée pour la famille :
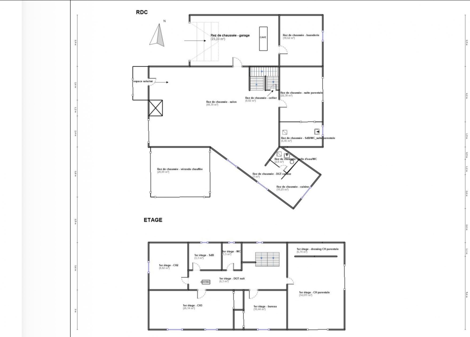
Volumes hors normes : Un séjour de 44 m² avec cheminée, ouvert sur une véranda climatisée (20 m²), créant un espace de vie de plus de 60 m².
Double Suite Parentale : Une suite de 29 m² en rez-de-chaussée pour une vie de plain-pied, complétée à l'étage par 4 chambres (dont une de 26 m² et une de 20 m² !) et une seconde suite avec salle de bains.
Le sens du détail : Cuisine indépendante équipée, 3 points d'eau et des WC à chaque niveau. Équipements de pointe & Dépendances :
Cette maison se distingue par ses prestations techniques qui facilitent le quotidien :
Domotique intégrée : Gestion intelligente des équipements pour un confort optimal et des économies d'énergie.
Climatisation totale : Toutes les pièces de vie et les 5 chambres sont climatisées.
Espaces techniques optimisés : Un sous-sol fonctionnel comprenant une véritable cave à vin pour les amateurs et une buanderie/lingerie de 18,60 m² (rare !).
Stationnement : Garage fermé de 23 m² et parking privatif sur la parcelle. Extérieur & Quartier :
Jardin clos avec piscine, idéalement situé à Saint-Mitre, offrant un accès rapide aux écoles, bus et commerces tout en préservant une sérénité totale.
Bien en pleine propriété, prix honoraires inclus de 4 % charge vendeur. 510955891 négociateur salarié.
Honoraires à la charge du vendeur. Classe énergie B, Classe climat A Montant moyen estimé des dépenses annuelles d'énergie pour un usage standard, établi à partir des prix de l'énergie de l'année 2021 : entre 1066.00 et 1443.00 . Les informations sur les risques auxquels ce bien est exposé sont disponibles sur le site Géorisques : georisques.gouv.fr.