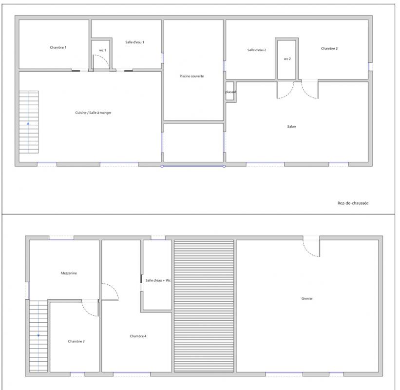
Demeure de caractère édifée en 1897 à base de pierre de grès roses et briques, ce qui lui donne son charme et l'élégance des villas d'époque. Sa situation dominante lui permet d'obtenir une vue imprenable sur le Port et le Cap d'Erquy connus pour son gisement de coquille St Jacques ainsi que le GR34 qui offre une découverte des multiples plages sauvages du secteur. La cour d'entrée de cette majestueuse propriété laisse imaginer une large possibilité d'accueil pour recevoir famille et amis, l'ancien puits et la façade principale donne le ton pour nous guider ensuite à un carport situé au même niveau que la pièce de vie. Le spacieux hall d'entrée sépare d'un coté un séjour lumineux, baigné de lumière par sa double exposition nord/sud, chaleureux par son parquet ancien et agrémenté par une cheminée en marbre blanc. Le bow window permet de profiter d'un lieu calme et paisible, spot idéal pour admirer le spectacle des marées et des illuminations du port à la nuit tombée. La cuisine séparée de 16m2 a été pensée dans les moindres détails pour être fonctionnelle et laisse une place confortable pour les grandes receptions. Elle permet aussi l'accès direct à une véranda ouvrant sur la terrasse, et la piscine chauffée, idéal pour les journées d'été. Coté nuit, une chambre principale avec SDB/WC située au même niveau offre une vie de plain pied, un veritable confort et une sécurité optimale, un deuxieme wc indépendant complète le tout. À l'étage, un grand palier dessert deux SDE/WC et 4 chambres entre 9 et 15m2 dont avec accès à un balcon promettant un réveil doux et une vue sur mer exceptionnelle. L'escalier principal, mène jusqu'au RDC disposant d'un ancien local professionnel, parfait pour y exercer son activité ou bien transformer celui-ci en un appartement indépendant de 85m2. Reliée par la véranda , une ancienne écurie de 111m2 restant à rénover laisse place à votre imagination (un nouvel espace pour accueillir, une partie technique/stockage...). Prix : 1 400 000EUR net vendeur soit 1 453 200EUR HAI (3,8% charge acquéreur) CLASSE ÉNERGIE : D /CLASSE CLIMAT : D. Montant moyen estimé des dépenses annuelles d'énergie pour un usage standard, établi à partir des prix de l'énergie de l'année 2021 : entre 2989 EUR et 4070 EUR. Les informations sur les risques auxquels ce bien est exposé sont disponibles sur le site Géorisques : www.georisques.gouv.fr
Villa
263 m²
5 525 €
40 m²
1595 m²
8
5
2
2
6
1897
Sud
Nord
4
1
Oui
Consommations énergétiques
Logement économe
158
Logement énergivore (kWhEP/m2/an)
Émissions de gaz à effet de serre
Faible émission de GES
32
Forte émission de GES(kgeqCO2/m2/an)
Contact L'immobilier De La Baie
Contacter gratuitement à l'aide du formulaire ci-dessous.