Villars : appartement avec terrasse 2 chambres à acheter
Villars 42390
0
Honoraires à la charge du vendeur.
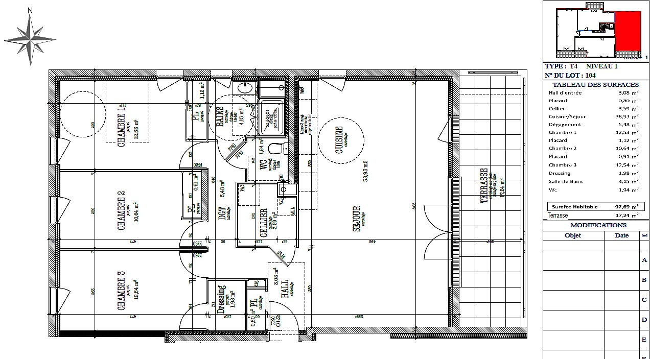
Appartement en VEFA , T3 doté d'une charmante terrasse profonde et ensoleillée sur Villars. Bâtiment avec accessibilité PMR. L'espace intérieur est constitué d'un espace cuisine, une salle d'eau, un coin salon de 26.77m2 et 2 chambres. Sa surface plancher habitable sort 67.39m2. Le calme du lieu est garanti grâce aux fenêtres à double vitrage. Pour vous aérer sans quitter votre appartement, vous bénéficierez d'une terrasse occupant 40.96m2 pour manger dehors, . Appartement au 1e niveau d'un bâtiment sur 2 étages ; il y a un ascenseur dans le bâtiment. Prix de vente proposé par ST ETIENNE / 1ER COURONNE : 230 000 EUR. Si vous êtes à la recherche d'une habitation pour votre famille monoparentale, n'hésitez pas à venir voir ce logement. Plusieurs lots du T2 au T4 avec garage et place de parking en option. Pour tout renseignements Mme Dutreuil Catherine o6 10 86 48 74 Les informations sur les risques auxquels le bien est exposé sont disponibles sur le site Géorisques : www.georisques.gouv.fr
67.39 m²
3 413 €
26 m²
3
2
1
1
1 sur 2
Oui
Oui
Oui
Oui (29 lots)
Contact DUTREUIL
Contacter gratuitement à l'aide du formulaire ci-dessous.