VILLARS LES DOMBES - Immeuble composé de 5 appartements
Villars-les-Dombes 01330
0
Honoraires à la charge du vendeur.
VILLARS LES DOMBES - À proximité de la gare, venez découvrir cet ensemble immobilier de 17 pièces de 367 m².
- T2 au rez-de-chaussée de 36 m² : une lumineuse pièce de vie avec cuisine et ayant accès à une terrasse, une chambre, une salle de bains et un WC indépendant. (appartement vide)
- T3 au rez-de-chaussée de 53 m² : une cuisine avec accès à la terrasse, un lumineux séjour, deux chambres et une salle d'eau avec WC. Un garage complète ce lot. (vendu loué)
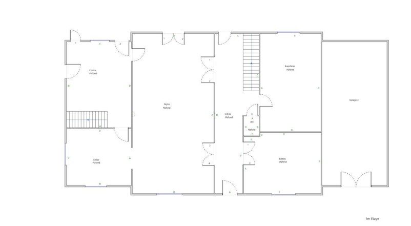
- T5 en duplex (0 et +1) de 115 m² : une entrée, une vaste pièce de vie (39 m²) avec cuisine aménagée et équipée (plaque, hotte ), de 4 chambres, d'une salle de bains, d'une buanderie et d'un WC. Durant les beaux jours, vous pourrez profiter d'une agréable terrasse et d'un jardin. (vendu loué)
- T3 au premier étage de 59 m² : une entrée, une spacieuse pièce de vie avec cuisine aménagée, le tout formant un ensemble de 33 m², 2 chambres, une salle de bains et un WC indépendant. (vendu loué)
- T4 au premier étage de 104 m² : une entrée, une cuisine dinatoire aménagée, un grand séjour de 30 m² avec cheminée, trois chambres, une salle de bains, une mezzanine (pouvant servir de chambre, de bureau ou de salle de jeux) et un WC indépendant. Durant les jours ensoleillé, vous pourrez vous détendre et prendre vos repas sur une belle terrasse avec barbecue en pierre. Une jolie cave voutée et un garage complètent ce lot. (vendu loué)
Le Collège Léon Comas, le Lycée Agricole Privé de l'Ain, l'École Simone Veil et l'École Maternelle des p'Tits Artistes sont implantés à moins de 10 minutes à pied. Niveau transports, il y a la gare Villars-les-Dombes juste à côté. Les autoroutes A46 et A42 sont accessibles à moins de 18 km et Villeurbanne est située à 28 km.
Les informations sur les risques auxquels ce bien est exposé sont disponibles sur le site Géorisques : www.georisques.gouv.fr.
Découvrez toutes les originalités de cette maison à vendre en prenant RDV avec votre agence immobilière CESAR ET BRUTUS.
REF BG-7240-1
Honoraires à la charge du vendeur. Classe énergie D, Classe climat B. Montant moyen estimé des dépenses annuelles d'énergie pour un usage standard, établi à partir des prix de l'énergie de l'année 2024 : 940.00 . Date de réalisation du DPE : 10-07-2014. Les informations sur les risques auxquels ce bien est exposé sont disponibles sur le site Géorisques : georisques.gouv.fr.