Villejuif : Idéal investissement locatif dans résidence de services
Villejuif 94800
0
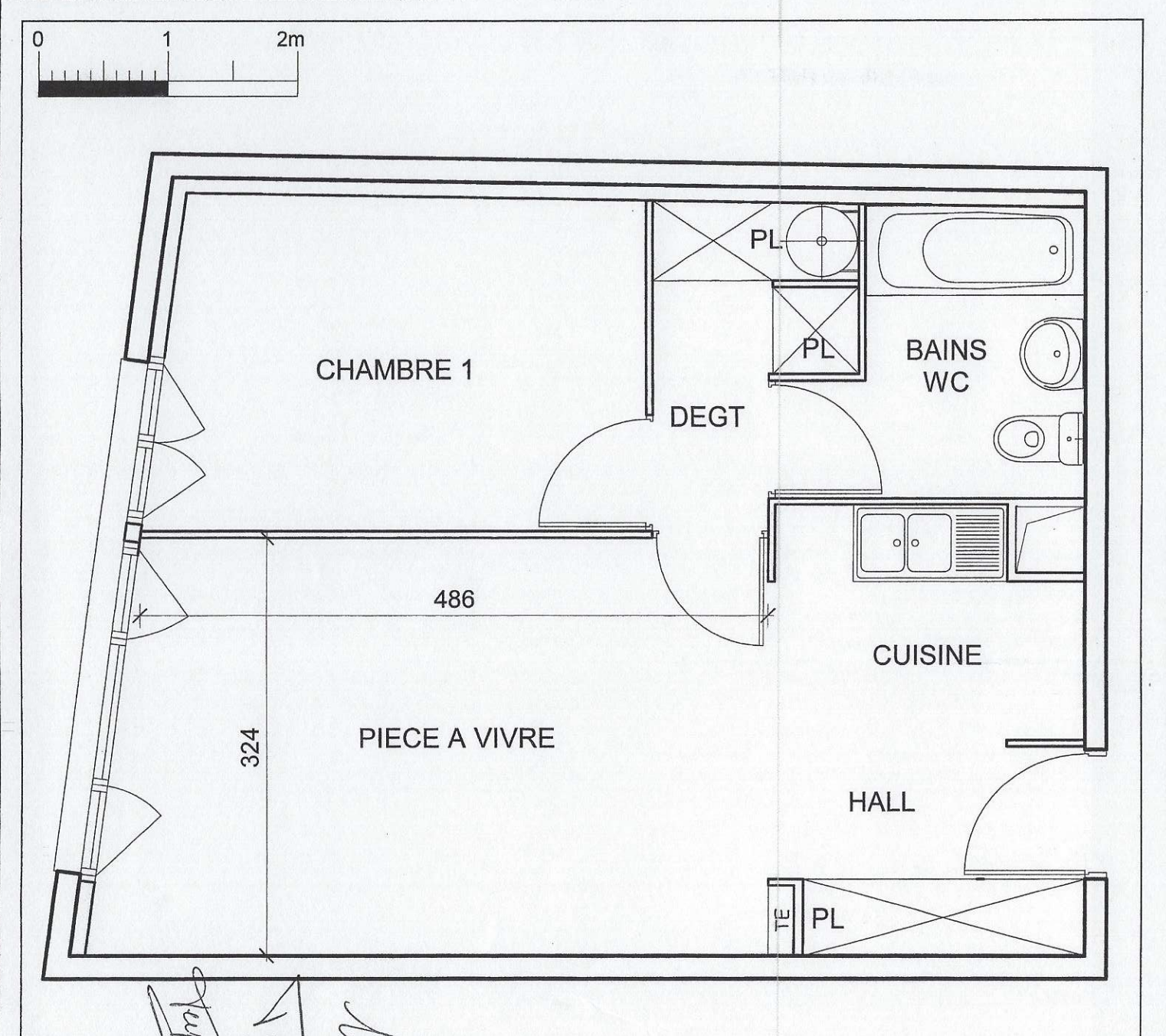
Spécial Investissement locatif par bail commercial. Fiscalité LMNP. (Aucune possibilité d'acquisition en résidence principale ou secondaire). A Villejuif, au sein d'une résidence affaire, appartement - studio, meublé, d'une surface de 29.01 m², bénéficiant d'un emplacement privilégié. Gestion locative totalement gérée et sans souci par bail locatif. Percevez 4316€ (sans les charges) de loyer garanti/an soit 5.79% de rentabilité immédiate. Grâce à l'avantage fiscal du Loueur Meublé Non Professionnel, bénéficiez de revenus nets d'impôts (ou partiellement). Pour obtenir des informations complémentaires, Contactez-nous vite !! PIERRE-REVENTE : +33(0)2.40.26.33.88 / Christophe BIZEAU +33(0)6.34.11.23.76 ou via notre site « PIERRE-REVENTE ». Visite virtuelle & conseils personnalisés disponibles sur demande.
39 m²
1 981 €
1
1
1
6
2005
Équipée
Consommations énergétiques
Logement économe
225
Logement énergivore (kWhEP/m2/an)
Émissions de gaz à effet de serre
Faible émission de GES
7
Forte émission de GES(kgeqCO2/m2/an)
Contact PIERRE REVENTE
Contacter gratuitement à l'aide du formulaire ci-dessous.