VIROFLAY: Local commercial en centre-ville avec vitrine et reser
Viroflay 78220
0
Honoraires à la charge de l'acquéreur et du vendeur (Prix hors honoraires : 0 euros).
Les charges de location sont prévisionnelles mensuelles avec régularisation annuelle.
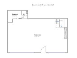
CENTRE VILLE/RIVE GAUCHE : Local commercial de 84,76 m² idéalement situé au coeur de Viroflay.Local commercial de standing, idéalement situé au 41 avenue du Général Leclerc, Viroflay, au sein d'un immeuble de 1998. D'une superficie totale de 84,76 m², répartie sur deux niveaux, il comprend une réserve en sous-sol.Il se compose d'un rez-de-chaussée de plain-pied, conforme aux normes PMR, s'ouvre sur un plateau de 57,25 m², dont 51,27 m² d'espace bureautique, baigné de lumière naturelle grâce à deux larges baies vitrées et une porte vitrée, toutes équipées de double vitrage sécurisé. Ces vitrines d'une surface totale de 22 m² (4,13 m x 2,66 m chacune) offrent une visibilité optimale, avec une exposition plein nord. À l'arrière, un espace kitchenette et des sanitaires occupent une surface de 6 m².Le sous-sol est accessible par un escalier en béton qui mène à une réserve de 27,51 m², offrant un espace de stockage pratique et sécurisé.Ce local bénéficie d'une localisation stratégique, au coeur des commerces de Viroflay, avec un accès direct à deux passages piétons, et à proximité immédiate du marché couvert/extérieur ainsi que des espaces culturels tels que l'Écu de France et la Médiathèque. Il est important de noter que toute activité de commerce de bouche ou générant des nuisances ne sera pas autorisée.Ce bien constitue une opportunité idéale pour des activités tertiaires ou commerciales, offrant des conditions d'exploitation optimales dans un cadre urbain recherché.Loyer mensuel d'avance hors charges : 2 218 TTC. Provision pour charges mensuelle d'avance; 60 TTC (forfait trimestriel avec régularisation annuelle). Dépôt de garantie : 6 654 TTC, soit 1 trimestre hors charges. Taxe foncière 350 (hors ETOM). Loyer non soumis à la TVA. Chauffage et eau chaude électrique individuelle (DPE vierge).Les honoraires sont de 10 % HT du loyer annuel charges comprises + TVA (20%) à la charge du preneur dont 350 TTC pour l'état d'entrée des lieux à la charge du preneur. Ce bien est proposé par un agent commercial, siren 800 339 715.
Honoraires de 2 662 à la charge du locataire. Provision sur charges 60 /mois, régularisation annuelle. Dépôt de garantie 4 436 . DPE vierge. Les informations sur les risques auxquels ce bien est exposé sont disponibles sur le site Géorisques : georisques.gouv.fr.