Goodshowcase
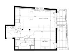
Vente appartement 2 pièces

Vente appartement 2 pièces
189 500 €

Annonces similaires

Vente appartement

Vitré 35500 - 0

195 000 €

...Découvrez une adresse d'exception à Vitré, où charme médiéval et modernité se conjuguent...

Voir l'annonce

Vente appartement

Vitré 35500 - 0

209 000 €

...61m² - 1er étage - ascenseur - terrasse 4...

Voir l'annonce

Vente appartement

Vitré 35500 - 0

219 000 €

...22m² - 3ème étage - ascenseur - loggia 6...

Voir l'annonce

Vente appartement

Vitré 35500 - 0

192 000 €

...Non loin du Jardin du Parc, à 1 km du Château de Vitre, à 650 mètres de la gare, cette nouvelle...

Voir l'annonce

Vente appartement

Vitré 35500 - 0

186 500 €

...40m² Ouest - 1er étage - balcon 6...

Voir l'annonce