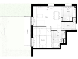
VITRE - Appartement 2 pièces 46.50m² Ouest - terrasse de 6.60m² - rez-de-chaussée - ascenseur - stationnement en sous-sol sécurisé. Dans une résidence contemporaine aux dernières normes, non loin du centre de vitré, à proximité des commerces, commodités, équipements sportifs et culturels,,. appartement de 2 pièces de 46.50m² exposé Ouest avec terrasse de 6.60m² en rez-de-chaussée comprenant : une entrée avec placard, un séjour salon avec cuisine ouverte, donnant accès sur une terrasse et un jardin, une chambre, une salle de bains avec wc. Stationnement en sous-sol sécurisé. Prix promoteur - frais de notaire réduits - normes RT2020. Les informations sur les risques auxquels ce bien est exposé sont disponibles sur le site Géorisques : www.georisques.gouv.fr. Photos non contractuelles - Suggestions d'aménagements Copropriété de 38 lots - dont 38 lots habitation. (Pas de procédure en cours). Charges annuelles : 648 euros.