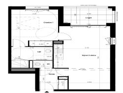
VITRÉ -Appartement 2 pièces de 49.22m² - 2ème étage - ascenseur - loggia 6.37m² - stationnement en sous-sol sécurisé. Idéalement situé en plein centre ville, à deux pas des commerces, des commodités et des transports, cet appartement de 2 pièces se situe au 2ème étage d'une résidence contemporaine aux belles prestations. D'une superficie de 49.22 m², il se compose d'une entrée avec placard, d'un séjour salon avec cuisine ouverte, prolongé par une loggia de 6.37m². Une chambre, une salle d'eau et des wcs indépendants complètent ce bien. Un stationnement sécurisé en sous-sol est inclus. Prix promoteur - Frais de notaire réduits. Les informations sur les risques auxquels ce bien est exposé sont disponibles sur le site Géorisques : www.georisques.gouv.fr. Photos non contractuelles - Suggestions d'aménagements. Copropriété de 65 lots - dont 65 lots habitation. (Pas de procédure en cours). Charges annuelles : 720 euros.