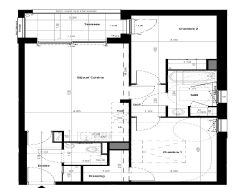
VITRÉ - Centre ville - Appartement 3 pièces de 61.29m² - 1er étage - ascenseur - loggia 5.29m² - stationnement en sous-sol sécurisé. En plein centre ville de Vitré, dans une belle résidence à proximité immédiate des commerces, des commodités et des transports, appartement 3 pièces de 61.29m², situé au 1er étage avec ascenseur comprenant : une entrée avec placard, un séjour salon avec cuisine ouverte, donnant accès à une loggia de 5.29m², deux chambres avec placard ou dressing, salle de bains, wc indépendant. Stationnement en sous-sol sécurisé. Prix promoteur - frais de notaire réduits. Les informations sur les risques auxquels ce bien est exposé sont disponibles sur le site Géorisques : www.georisques.gouv.fr. Photos non contractuelles - Suggestions d'aménagements. Copropriété de 65 lots - dont 65 lots habitation. Charges annuelles : 878 euros.