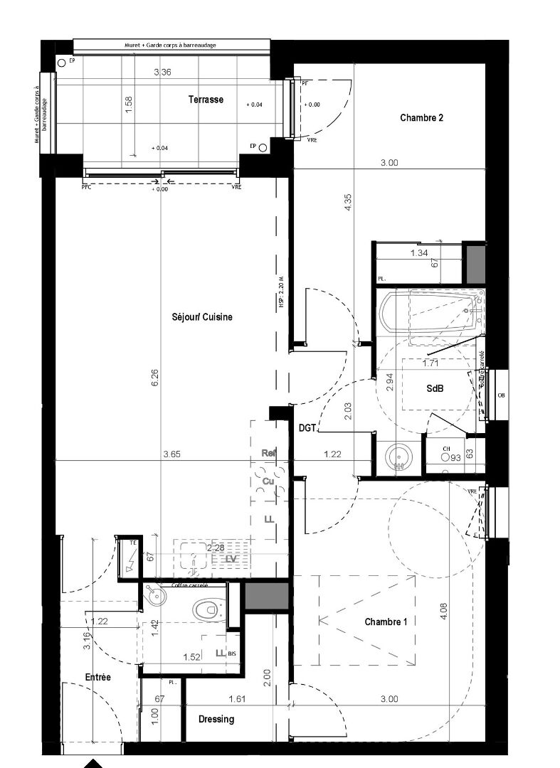
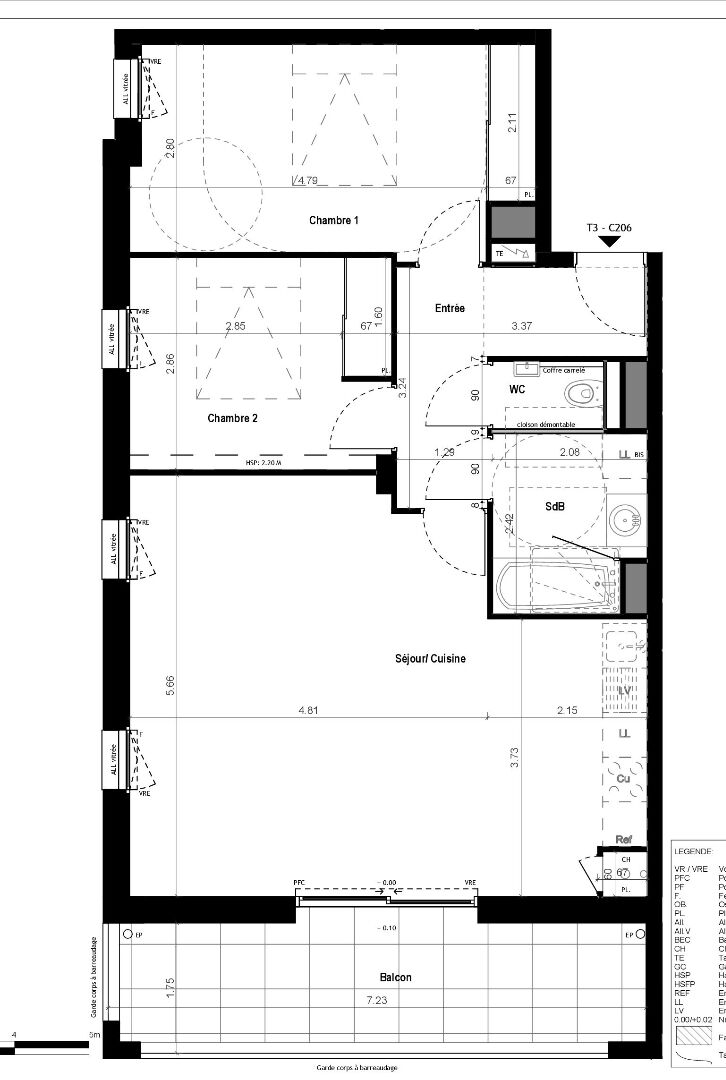
VITRÉ - Centre ville - Appartement 3 pièces de 75.53m² - 5ème étage - ascenseur - loggia 6.23m² - double stationnements en sous-sol sécurisé. Située en plein centre-ville, au sein d'un résidence contemporaine offrant un cadre de vie privilégié, à proximité immédiate des commerces, des commodités et des transports, appartement 3 pièces de 75.53m², au 5ème étage avec ascenseur, comprenant : une entrée avec placard, grand séjour salon avec cuisine, donnant accès à une loggia de 6.23m², deux chambres avec placard, salle de bains, wc indépendant. Double stationnements en sous-sol sécurisé. Prix promoteur - frais de notaire réduits. Les informations sur les risques auxquels ce bien est exposé sont disponibles sur le site Géorisques : www.georisques.gouv.fr. Photos non contractuelles - Suggestions d'aménagements. Chauffage individuel au gaz avec chaudière à condensation. Copropriété de 65 lots - dont 65 lots habitation. (Pas de procédure en cours). Charges annuelles : 1080 euros.