VITRE - Appartement 4 pièces de 73.74m² Sud - 4ème étage - ascenseur - loggia 11 m² - garage
Vitré 35500
0
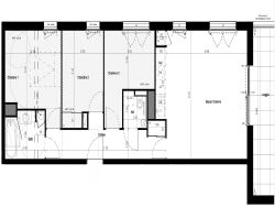
VITRÉ - Centre ville Appartement 4 pièces de 73.74m² Sud - 4ème étage - ascenseur - loggia 11 m² - garage double en sous-sol sécurisé. Situé en plein centre-ville, au sein d'une résidence offrant un cadre de vie privilégié, cet appartement de 4 pièces, d'une superficie de 73.74m² exposé plein Sud, bénéficie d'un emplacement idéal à proximité immédiate des commerces, des services et des transports. Niché au 4ème étage avec ascenseur, il se compose d'une entrée avec dégagement et placard, d'un séjour salon lumineux avec cuisine, prolongé par une loggia de 11m². L'espace nuit comprend trois chambres, une salle de bains et wc indépendant. Un garage double sécurisé en sous-sol complète ce bien. Prix promoteur - Frais de notaire réduits. Les informations sur les risques auxquels ce bien est exposé sont disponibles sur le site Géorisques : www.georisques.gouv.fr. Photos non contractuelles - Suggestions d'aménagements. Chauffage individuel. Copropriété de 65 lots - dont 65 lots habitation. (Pas de procédure en cours). Charges annuelles : 1051 euros.