VOIRON - Grand Appartement T5 de 111 m² avec garage de 30 m² e
Voiron 38500
0
Honoraires à la charge du vendeur.
Exclusivité, rue du Lavoir de Criel, Voiron.
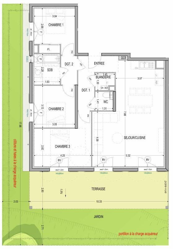
Dans une copropriété bien tenue, entourée de verdures luxuriantes et bien arborée, venez découvrir cet appartement de 111 m² loi Carrez idéalement placé (10 minutes à pied du centre ville), Stationnement facile dans la copropriété + garage de 30 m².
L'appartement, traversant, propose une belle terrasse de 17 m² donnant sur le parc privé de la copropriété.
Il est composé de la façon suivante : -Entrée desservant le coin nuit et le coin 'vie' -Cuisine aménagée -Séjour en L donnant sur la terrasse -4 chambres, dont l'une donne sur la même terrasse -1 Salle de bains avec VMC -1 Salle d'eau avec VMC -WC séparé avec VMC
Chauffage au sol avec plancher chauffant électrique, complété par quelques radiateurs à inertie. Eau chaude sanitaire via un ballon électrique Pompe à chaleur avec deux unités réversibles pour votre confort en toute saison.
L'installation électrique ne comporte aucune anomalie.
Grand plus : grand garage électrifié de 30m² compris avec cet appartement, et relié directement à l'intérieur avec point d'eau. Idéal pour bricoler.
Ce bien unique nécessite une remise au gout du jour, parfait pour personnaliser votre futur chez vous !
Contactez moi pour plus de renseignements
Gatien MESTRALLET au o6 61 92 81 25 Mandat n°149 VH
Honoraires à la charge du vendeur. Dans une copropriété de 70 lots. Aucune procédure n'est en cours. Classe énergie D, Classe climat B Montant moyen estimé des dépenses annuelles d'énergie pour un usage standard, établi à partir des prix de l'énergie de l'année 2021 : entre 1490.00 et 2100.00 . Les informations sur les risques auxquels ce bien est exposé sont disponibles sur le site Géorisques : georisques.gouv.fr.