Au c?ur d'un secteur calme entouré de verdure, ce bel appartement de 78 m² offre un cadre de vie agréable à proximité immédiate des commerces, des transports en commun et des établissements scolaires (de l'école maternelle au lycée).
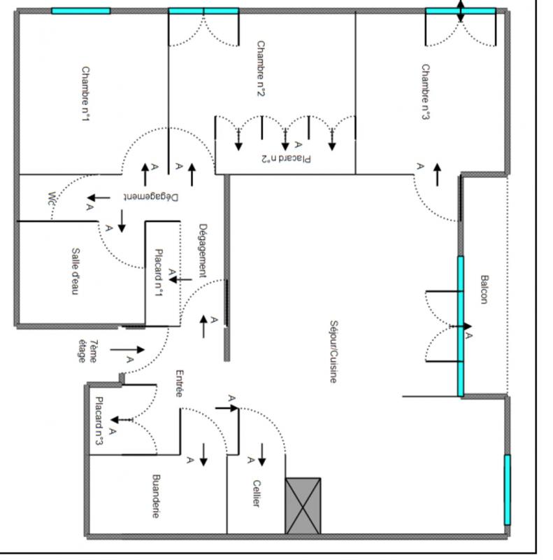
L'appartement propose une pièce de vie spacieuse et baignée de lumière, ouverte sur une cuisine moderne, aménagée et équipée, ainsi qu'un espace repas qui permet de profiter pleinement de la zone de jour dans une atmosphère conviviale.
La partie nuit se compose de deux grandes chambres avec rangements intégrés, d'une salle d'eau fonctionnelle et d'un WC séparé, apportant praticité et confort au quotidien.
Le stationnement est simple grâce aux emplacements disponibles au pied de la résidence. Les charges de copropriété incluent l'ensemble des postes essentiels : eau chaude, eau froide, chauffage collectif, gardiennage, entretien des parties communes et accès à l'ascenseur.
Les fenêtres en PVC double vitrage garantissent une bonne isolation, tant thermique que sonore, tandis que les volets roulants électriques apportent un réel confort d'utilisation. De plus, les travaux de ravalement ont été votés et entièrement financés, ce qui représente un atout non négligeable pour le futur acquéreur.
Ce logement combine une situation recherchée, une organisation intérieure optimisée et un bon niveau de confort.
Une belle opportunité à découvrir sans tarder.
Cette annonce référence 310378 vous est présentée par votre agent commercial BSK Immobilier JEROME GIRARD (EI) immatriculé au RSAC de TOURS (37000) sous le numéro 89125133200013.
Prix du bien : 149 900,00 €
Les honoraires d'agence sont à la charge du vendeur.
A propos de la copropriété :
Pas de procédure en cours.
Nombre de lots : 825
Charges prévisionnelles annuelles : 2 800,00 €
A propos des performances énergétiques :
Date de réalisation du diagnostic énergétique : 05/12/2023
Score DPE : 151 kWhEP/m²/an
Score GES : 52 kgepCO2/m²/an
Montant estimé des dépenses annuelles d'énergie pour un usage standard : entre 846.00 € et 1144.00 € par an. Prix moyens des énergies indexés sur l'année 2021 (abonnements compris).
Les informations sur les risques auxquels ce bien est exposé sont disponibles sur le site Géorisques : www.georisques.gouv.fr
78 m²
1 922 €
4
2
1
1964
Consommations énergétiques
Logement économe
151
Logement énergivore (kWhEP/m2/an)
Émissions de gaz à effet de serre
Faible émission de GES
52
Forte émission de GES(kgeqCO2/m2/an)
Contact GIRARD JEROME
Contacter gratuitement à l'aide du formulaire ci-dessous.