Honoraires à la charge de l'acquéreur (Prix hors honoraires : 1200000 euros).
BARBIEUX - DONNEZ DU STYLE A VOS BUREAUX GRÂCE A CE SOMPTUEUX HOTEL PARTICULIER RENOVE, BATIE PAR LE MÊME ENTREPRENEUR QUE LA VILLA CAVROIS.
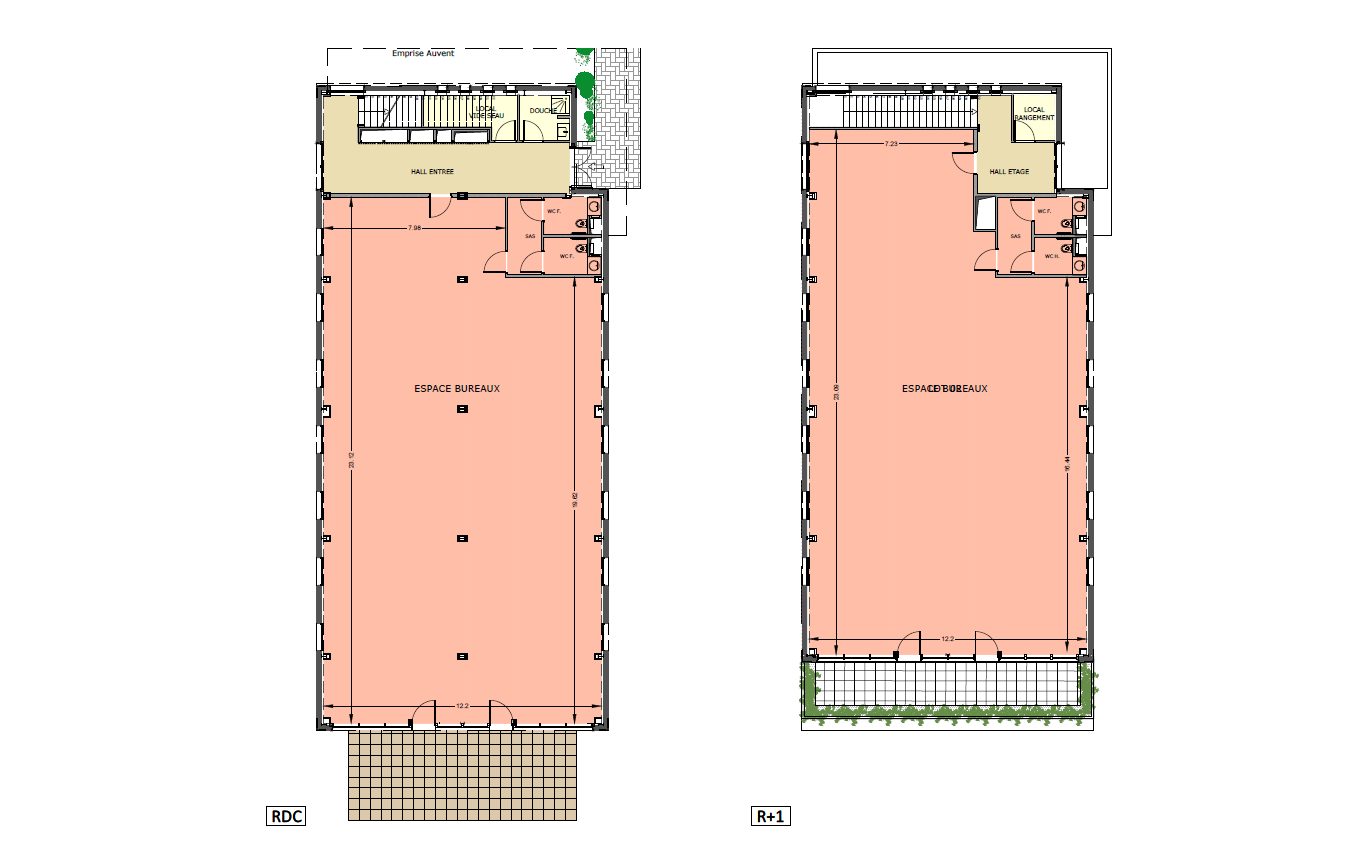
IL DEVELOPPE 476 M² ET OFFRE 362 M² DE BUREAUX - COWORKING - SALLES DE REUNIONS 4 STUDIOS - ACCES INDEPENDANTS - TOTALISANT 114 M² ENTRE SOL UTILE ET GARAGES 130 M² PARKING CAVES 85 M²
PARCELLE 1090 M² INTEGRANT UN ESPACE PARKING, UNE TERRASSE, UN JARDIN PLANTE, ET UNE RESERVE FONCIERE CONSTRUCTIBLE (accès indépendant possible !)
TRAMWAY ET METRO A 100 METRES.
DOSSIER, PLANS, SUR DEMANDE. VISITES SUR RENDEZ VOUS !
Honoraires inclus de 5% à la charge de l'acquéreur. Prix hors honoraires 1 200 000 . Classe énergie E, Classe climat D. Les informations sur les risques auxquels ce bien est exposé sont disponibles sur le site Géorisques : georisques.gouv.fr.
476 m²
2 647 €
5 %
Sud
Ouest
2
2
Oui
Consommations énergétiques
Logement économe
248
Logement énergivore (kWhEP/m2/an)
Émissions de gaz à effet de serre
Faible émission de GES
30
Forte émission de GES(kgeqCO2/m2/an)
Contact Quentin Lechantre
Contacter gratuitement à l'aide du formulaire ci-dessous.